Maison neuve à
Saint-Lô (50000) Référence : JS2485544_1

Prix du projet : Maison avec Terrain

prix 206 000 €

  • 7 pièces
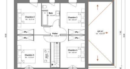
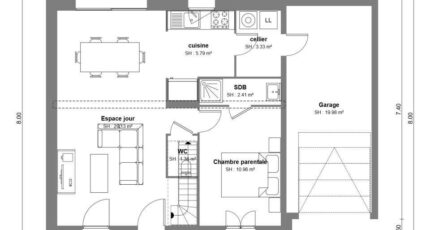
  • 5 chambres
  • Surface maison 102 m2

VENTE d'une maison de 7 pièces (102 m²) à Saint-Lô
IDÉALEMENT SITUÉE - MAISON 7 PIÈCES NEUVE
Nous vous présentons cette maison de 7 pièces de 102 m² et de 306 m² de terrain idéalement située dans Saint-Lô (50000). Son intérieur propose cinq chambres, une cuisine et deux salles de bains.
Il s'agit d'une maison de 2 niveaux. Elle est neuve.
Cette maison se trouve dans un secteur convoité. Des établissements scolaires (de la maternelle au lycée) sont implantés à moins de 10 minutes à pied, tout comme une crèche. Côté transports en commun, il y a les gares Saint-Lô et Pont-Hébert à moins de 10 minutes en voiture. Il y a un accès à la nationale N174 à 2 km. On trouve un bowling, une bibliothèque, des commerces, des boucheries-charcuteries, une supérette, des épiceries et un bureau de poste à quelques minutes. Enfin, le marché Place De Gaulle anime le quartier.
Son prix de vente est de 206 000 €.
Prenez contact avec notre agence (HUE Emilie : 06-29-81-46-66) pour plus d'informations sur la maison ou sur les modalités de vente. Faites de vos projets immobiliers une réalité avec Maisons France Confort Bayeux.

Annonce proposée par un Agent Commercial Partenaire.

Mentions légales

Terrain proposé par un partenaire foncier selon disponibilités et autorisation de publicité au prix de 36 000 €. Hors droit d'enregistrement et frais de notaire. Terrain + Maison proposés au prix de 206 000 € (Hors branchements et raccordements, papiers peints, peintures, revêtement de sol dans les chambres. Tarif modifiable sans préavis). Etiquette énergie : A. Différents modèles disponibles pour ce terrain. Assurances et garanties du constructeur (RC professionnelle, décennale, dommage ouvrage, garantie de remboursement de l'acompte, livraison à prix et délai convenu) : https://www.maisons-france-confort.fr/mentions-legales/. HEXAOM Services est enregistré auprès de l'ORIAS en tant que Courtier en financement, Niveau 1, sous le numéro 14001345.

Contactez l'agence de Bayeux

02 31 51 20 91

    * Champs obligatoires

    Vos informations sont traitées par HEXAOM et transmises à un conseiller commercial qui vous contactera afin de répondre à votre demande. Les plans et images présentés sur notre site sont la propriété d’HEXAOM et ne peuvent pas être reproduits sans son accord. Pour retrouver notre politique de protection des données personnelles et exercer vos droits conformément à la « loi informatique et liberté » cliquez-ici.