Maison neuve à
Saint-Maixant
(33490) Référence :
HD2467496_2
Prix du projet : Maison avec Terrain
prix 213 650 €
- 3 pièces
- 2 chambres
- Surface maison 69 m2
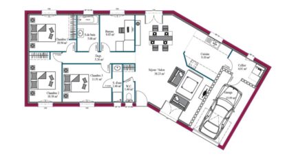
Saint-Maixant : maison T3 (69 m²) à vendre
EMPLACEMENT PRIVILÉGIÉ - MAISON 3 PIÈCES NEUVE
Contactez Hélène DEFFRESSIGNE (tél : O6-25-79-77-67)
En vente : nous vous proposons, bénéficiant d'un emplacement privilégié dans Saint-Maixant (33490), cette maison de 3 pièces de plain-pied de 69 m². Elle propose deux chambres, une cuisine et une salle de bains.
Le terrain de la propriété est de 1 020 m².
Cette maison est neuve.
Cette maison est située dans un secteur attractif. On trouve l'École Primaire François Mauriac à moins de 10 minutes à pied. Côté transports en commun, il y a sept gares à moins de 10 minutes en voiture. Il y a un accès à l'autoroute A62 à 4 km. On trouve un commerce à proximité de la maison.
Son prix de vente est de 213 650 €.
N'hésitez pas à prendre contact avec Hélène DEFFRESSIGNE (tél : O6-25-79-77-67) pour plus d'informations sur le bien, sur les modalités de vente ou sur les démarches à suivre. Maisons de la Côte Atlantique Langon vous accompagne à toutes les étapes de votre projet et dans tous vos projets immobiliers.
Mentions légales
Idée de réalisation en modèle prêt à décorer sur l'un de nos terrains partenaires, sous réserve de disponibilités. Voir détails en agence.Agence Maisons de la Côte Atlantique de Langon (33210)
- Téléphone :
- 05 56 76 82 20
- Adressse :
- 2, Rue du Onze Novembre
33210 Langon, France
