Maison neuve à
Saint-Maixant
(33490) Référence :
HD2456710_7
Prix du projet : Maison avec Terrain
prix 213 900 €
- 3 pièces
- 2 chambres
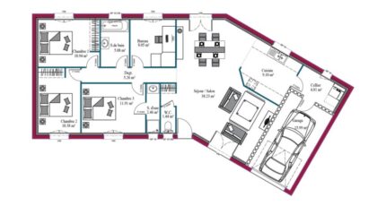
- Surface maison 69 m2
Maison F3 (69 m²) à vendre à Saint-Maixant
QUARTIER RECHERCHÉ - MAISON 3 PIÈCES NEUVE
Contactez Hélène DEFFRESSIGNE (tél : O6-25-79-77-67)
Notre agence Maisons de la Côte Atlantique Langon est heureuse de vous présenter cette maison de 3 pièces de plain-pied de 69 m² et de 1 060 m² de terrain à vendre, située dans un quartier convoité de Saint-Maixant (33490). Son intérieur compte deux chambres, une cuisine et une salle de bains.
Cette maison est neuve.
La maison se trouve dans un secteur prisé. L'École Primaire François Mauriac est implantée à moins de 10 minutes à pied. Côté transports en commun, on trouve sept gares à moins de 10 minutes en voiture. On trouve un accès à l'autoroute A62 à 4 km. Il y a un commerce à proximité de la maison.
Elle est à vendre pour la somme de 213 900 €.
Prenez contact avec notre constructeur (Hélène DEFFRESSIGNE : O6-25-79-77-67) pour obtenir de plus amples renseignements sur la maison, sur les démarches à suivre ou sur les modalités de vente.
Mentions légales
Idée de réalisation en modèle prêt à décorer sur l'un de nos terrains partenaires, sous réserve de disponibilités. Voir détails en agence.Agence Maisons de la Côte Atlantique de Langon (33210)
- Téléphone :
- 05 56 76 82 20
- Adressse :
- 2, Rue du Onze Novembre
33210 Langon, France
