Maison neuve à
Saint-Mesmes
(77410) Référence :
CY2410762_1
Prix du projet : Maison avec Terrain
prix 319 000 €
- 5 pièces
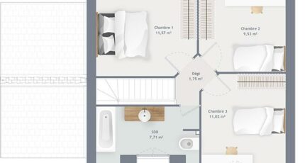
- 3 chambres
- Surface maison 80 m2
VENTE d'une maison T5 (80 m²) à Saint-Mesmes
IDÉALEMENT SITUÉE - MAISON 5 PIÈCES NEUVE
À vendre : proche du Transilien K (gare de Compans, 25 min de Paris), idéalement située dans Saint-Mesmes (77410), Maisons France Confort Mareuil-lès-Meaux vous propose cette maison de 5 pièces de 80 m². Elle est composée de trois chambres, d'une cuisine et d'une salle de bains.
Le terrain de cette maison s'étend sur 438 m².
Cette maison comporte 2 niveaux. Elle est neuve.
La propriété est située dans un quartier attractif. L'École Primaire Léonard de Vinci se trouve à moins de 10 minutes à pied. Niveau transports, il y a la ligne de RER B (Mitry-Claye) ainsi que sept gares à moins de 10 minutes en voiture. Il y a deux tennis dans les environs.
Son prix de vente est de 319 000 €.
N'hésitez pas à prendre contact avec Cedric YAHIAOUI (06-66-57-00-63) pour toute question sur la maison. Maisons France Confort Mareuil-lès-Meaux vous accompagne dans tous vos projets immobiliers et à toutes les étapes de votre projet.
Annonce proposée par un Agent Commercial Partenaire.
Mentions légales
Terrain proposé par un partenaire foncier selon disponibilités et autorisation de publicité au prix de 175 000 €. Hors droit d'enregistrement et frais de notaire. Terrain + Maison proposés au prix de 319 000 € (Hors branchements et raccordements, papiers peints, peintures, revêtement de sol dans les chambres. Tarif modifiable sans préavis). Etiquette énergie : A. Différents modèles disponibles pour ce terrain. Assurances et garanties du constructeur (RC professionnelle, décennale, dommage ouvrage, garantie de remboursement de l'acompte, livraison à prix et délai convenu) : https://www.maisons-france-confort.fr/mentions-legales/. HEXAOM Services est enregistré auprès de l'ORIAS en tant que Courtier en financement, Niveau 1, sous le numéro 14001345.Agence Maisons France Confort de Mareuil-lès-Meaux (77100)
- Téléphone :
- 01 60 09 28 30
- Adressse :
- Domexpo Est Village La Hayette
77100 Mareuil-lès-Meaux, France
