Maison neuve à
Saint-Mesmes
(77410) Référence :
CY2410762_2
Prix du projet : Maison avec Terrain
prix 337 000 €
- 5 pièces
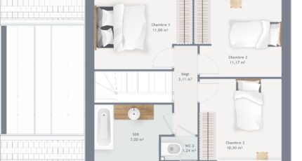
- 3 chambres
- Surface maison 90 m2
VENTE : maison de 5 pièces (90 m²) à Saint-Mesmes
IDÉALEMENT SITUÉE - MAISON 5 PIÈCES NEUVE
Proche de la gare de Compans (Paris à 25 min par le Transilien K), à vendre idéalement située dans Saint-Mesmes (77410), nous vous proposons cette maison de 5 pièces de 90 m².
Cette maison comporte 2 niveaux. Elle propose trois chambres, une cuisine et une salle de bains. La maison est neuve.
Le terrain de la propriété s'étend sur 438 m².
Cette maison se situe dans un quartier convoité. Il y a l'École Primaire Léonard de Vinci à moins de 10 minutes à pied. Côté transports, on trouve la ligne de RER B (Mitry-Claye) ainsi que sept gares à moins de 10 minutes en voiture. Il y a deux tennis à proximité du bien.
Elle est à vendre pour la somme de 337 000 €.
Prenez contact avec Cedric YAHIAOUI (06-66-57-00-63) pour tout renseignement sur la propriété ou sur les modalités de vente. Maisons France Confort Mareuil-lès-Meaux est là pour vous accompagner dans toutes vos démarches.
Annonce proposée par un Agent Commercial Partenaire.
Mentions légales
Terrain proposé par un partenaire foncier selon disponibilités et autorisation de publicité au prix de 175 000 €. Hors droit d'enregistrement et frais de notaire. Terrain + Maison proposés au prix de 337 000 € (Hors branchements et raccordements, papiers peints, peintures, revêtement de sol dans les chambres. Tarif modifiable sans préavis). Etiquette énergie : A. Différents modèles disponibles pour ce terrain. Assurances et garanties du constructeur (RC professionnelle, décennale, dommage ouvrage, garantie de remboursement de l'acompte, livraison à prix et délai convenu) : https://www.maisons-france-confort.fr/mentions-legales/. HEXAOM Services est enregistré auprès de l'ORIAS en tant que Courtier en financement, Niveau 1, sous le numéro 14001345.Agence Maisons France Confort de Mareuil-lès-Meaux (77100)
- Téléphone :
- 01 60 09 28 30
- Adressse :
- Domexpo Est Village La Hayette
77100 Mareuil-lès-Meaux, France
