Maison neuve à
Saint-Mesmes
(77410) Référence :
CY2433500_1
Prix du projet : Maison avec Terrain
prix 320 000 €
- 5 pièces
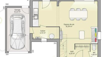
- 3 chambres
- Surface maison 90 m2
VENTE d'une maison F5 (90 m²) à Saint-Mesmes
MAISON 5 PIÈCES NEUVE - PROCHE DE PARIS
À vendre : à côté de la gare de Compans (Paris à 25 min par le Transilien K), découvrez à Saint-Mesmes (77410), cette maison de 5 pièces de 90 m². Son intérieur propose trois chambres, une cuisine et une salle de bains.
Le terrain du bien s'étend sur 782 m².
Cette maison possède 2 niveaux. Elle est neuve.
Il y a l'École Primaire Léonard de Vinci à moins de 10 minutes à pied. Niveau transports en commun, on trouve la ligne de RER B (Mitry-Claye) ainsi que sept gares à moins de 10 minutes en voiture. Il y a deux tennis à proximité.
Elle est proposée à l'achat pour 320 000 €.
Contactez notre agence (Cedric YAHIAOUI : 06-66-57-00-63) pour toute question sur le bien, sur les démarches à suivre ou sur les modalités de vente. Maisons France Confort Magny-le-Hongre est là pour vous accompagner dans tous vos projets immobiliers.
Annonce proposée par un Agent Commercial Partenaire.
Mentions légales
Terrain proposé par un partenaire foncier selon disponibilités et autorisation de publicité au prix de 160 000 €. Hors droit d'enregistrement et frais de notaire. Terrain + Maison proposés au prix de 320 000 € (Hors branchements et raccordements, papiers peints, peintures, revêtement de sol dans les chambres. Tarif modifiable sans préavis). Etiquette énergie : A. Différents modèles disponibles pour ce terrain. Assurances et garanties du constructeur (RC professionnelle, décennale, dommage ouvrage, garantie de remboursement de l'acompte, livraison à prix et délai convenu) : https://www.maisons-france-confort.fr/mentions-legales/. HEXAOM Services est enregistré auprès de l'ORIAS en tant que Courtier en financement, Niveau 1, sous le numéro 14001345.Agence Maisons France Confort de Magny-le-Hongre (77700)
- Téléphone :
- 01 84 80 92 96
- Adressse :
- 11 rue de Courtalin
77700 Magny-le-Hongre, France
