Maison neuve à
Saint-Savin
(33920) Référence :
IN2482561_2
Prix du projet : Maison avec Terrain
prix 305 000 €
- 7 pièces
- 4 chambres
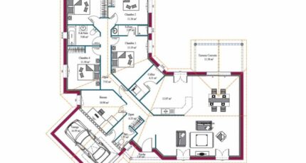
- Surface maison 146 m2
maison T7 Saint‑Savin / maison neuve Gironde / terrain constructible
Maison T7 de 146 m² à vendre - Saint-Savin (33920)
MCA Blaye - Avis note 4.8
Cette maison neuve T7, entièrement de plain‑pied, propose 146 m² habitables et repose sur un terrain de 1 980 m². Elle offre quatre chambres, deux salles de bains et une cuisine fonctionnelle. Le quartier dispose d'écoles, de deux gares proches, de commerces, d'un tennis et d'un accès rapide à la N10.
Prix maison + terrain : 305 000 €
Mentions légales
Idée de réalisation en modèle prêt à décorer sur l'un de nos terrains partenaires, sous réserve de disponibilités. Voir détails en agence.Agence Maisons de la Côte Atlantique de Blaye (33390)
- Téléphone :
- 05 57 32 87 63
- Adressse :
- 64, Rue Saint Romain
33390 Blaye, France
