Maison neuve à
Subles
(14400) Référence :
JS2485702_2
Prix du projet : Maison avec Terrain
prix 238 100 €
- 7 pièces
- 5 chambres
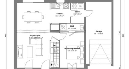
- Surface maison 102 m2
Subles : maison T7 (102 m²) à vendre
IDÉALEMENT SITUÉE - MAISON 7 PIÈCES NEUVE
En vente : localisée à 28 km de Caen, ayez le coup de coeur pour, idéalement située dans Subles (14400), cette maison de 7 pièces de 102 m².
Cette maison possède 2 niveaux. Son intérieur offre cinq chambres, une cuisine et deux salles de bains. Cette maison est neuve.
Le terrain de la propriété est de 485 m².
La maison se trouve dans un quartier prisé. L'École Primaire André Lefevre est implantée à moins de 10 minutes à pied. Niveau transports en commun, il y a deux gares (Bayeux et Le Molay-Littry) à moins de 10 minutes en voiture. La nationale N13 est accessible à 3 km. On trouve une bibliothèque dans les environs.
Elle est proposée à l'achat pour 238 100 €.
Prenez contact avec Emilie HUE (tél : 06-29-81-46-66) pour toute question sur la propriété, sur les modalités de vente ou sur les démarches à suivre.
Annonce proposée par un Agent Commercial Partenaire.
Mentions légales
Terrain proposé par un partenaire foncier selon disponibilités et autorisation de publicité au prix de 68 100 €. Hors droit d'enregistrement et frais de notaire. Terrain + Maison proposés au prix de 238 100 € (Hors branchements et raccordements, papiers peints, peintures, revêtement de sol dans les chambres. Tarif modifiable sans préavis). Etiquette énergie : A. Différents modèles disponibles pour ce terrain. Assurances et garanties du constructeur (RC professionnelle, décennale, dommage ouvrage, garantie de remboursement de l'acompte, livraison à prix et délai convenu) : https://www.maisons-france-confort.fr/mentions-legales/. HEXAOM Services est enregistré auprès de l'ORIAS en tant que Courtier en financement, Niveau 1, sous le numéro 14001345.Agence Maisons France Confort de Bayeux (14400)
- Téléphone :
- 02 31 51 20 91
- Adressse :
- 2, rue Saint Loup
14400 Bayeux, France
