Maison neuve à
Saintines (60410) Référence : CY2432414_35

Prix du projet : Maison avec Terrain

prix 260 000 €

  • 5 pièces
  • 3 chambres
  • Surface maison 90 m2

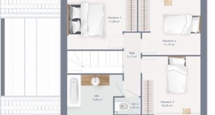
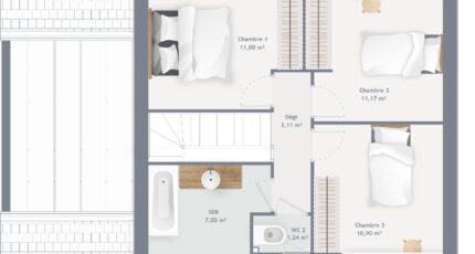
Maison de 5 pièces (90 m²) à vendre à Saintines
PROCHE GARE - MAISON 5 PIÈCES NEUVE
En vente : à deux pas de Compiègne, proche de la gare de Saintines (60410), Maisons France Confort Magny-le-Hongre vous présente cette maison de 5 pièces de 90 m² et de 482 m² de terrain. Son intérieur offre trois chambres, une cuisine et une salle de bains.
Il s'agit d'une maison de 2 niveaux. Elle est neuve.
Il y a l'École Primaire L. Collas à moins de 10 minutes à pied. Côté transports en commun, on trouve quatre gares à moins de 10 minutes en voiture. Il y a un accès à l'autoroute A1 à 6 km. Il y a une bibliothèque à quelques minutes de la maison.
Elle est à vendre pour la somme de 260 000 €.
Contactez notre agence (Cedric YAHIAOUI : 06-66-57-00-63) pour plus de renseignements sur la maison. Maisons France Confort Magny-le-Hongre est là pour vous accompagner dans tous vos projets immobiliers.

Annonce proposée par un Agent Commercial Partenaire.

Mentions légales

Terrain proposé par un partenaire foncier selon disponibilités et autorisation de publicité au prix de 80 900 €. Hors droit d'enregistrement et frais de notaire. Terrain + Maison proposés au prix de 260 000 € (Hors branchements et raccordements, papiers peints, peintures, revêtement de sol dans les chambres. Tarif modifiable sans préavis). Etiquette énergie : A. Différents modèles disponibles pour ce terrain. Assurances et garanties du constructeur (RC professionnelle, décennale, dommage ouvrage, garantie de remboursement de l'acompte, livraison à prix et délai convenu) : https://www.maisons-france-confort.fr/mentions-legales/. HEXAOM Services est enregistré auprès de l'ORIAS en tant que Courtier en financement, Niveau 1, sous le numéro 14001345.

Contactez l'agence de Mareuil-lès-Meaux

01 60 09 28 30

    * Champs obligatoires

    Vos informations sont traitées par HEXAOM et transmises à un conseiller commercial qui vous contactera afin de répondre à votre demande. Les plans et images présentés sur notre site sont la propriété d’HEXAOM et ne peuvent pas être reproduits sans son accord. Pour retrouver notre politique de protection des données personnelles et exercer vos droits conformément à la « loi informatique et liberté » cliquez-ici.