Maison neuve à
Saintines
(60410) Référence :
CY2432414_43
Prix du projet : Maison avec Terrain
prix 295 000 €
- 5 pièces
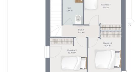
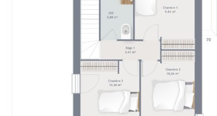
- 3 chambres
- Surface maison 90 m2
VENTE d'une maison F5 (90 m²) à Saintines
PROCHE GARE - MAISON 5 PIÈCES NEUVE
En vente : à deux pas de Compiègne, dans Saintines (60410), proche de la gare, nous vous proposons cette maison de 5 pièces de 90 m² et de 595 m² de terrain.
Cette maison possède 2 niveaux. Son intérieur se divise en trois chambres, une cuisine et une salle de bains. La maison est neuve.
Il y a l'École Primaire L. Collas à moins de 10 minutes à pied. Côté transports, on trouve quatre gares à moins de 10 minutes en voiture. On trouve un accès à l'autoroute A1 à 6 km. Il y a une bibliothèque à quelques minutes.
Son prix de vente est de 295 000 €.
Contactez Cedric YAHIAOUI (06-66-57-00-63) pour toute information sur la propriété, sur les modalités de vente ou sur les démarches à suivre.
Annonce proposée par un Agent Commercial Partenaire.
Mentions légales
Terrain proposé par un partenaire foncier selon disponibilités et autorisation de publicité au prix de 80 900 €. Hors droit d'enregistrement et frais de notaire. Terrain + Maison proposés au prix de 295 000 € (Hors branchements et raccordements, papiers peints, peintures, revêtement de sol dans les chambres. Tarif modifiable sans préavis). Etiquette énergie : A. Différents modèles disponibles pour ce terrain. Assurances et garanties du constructeur (RC professionnelle, décennale, dommage ouvrage, garantie de remboursement de l'acompte, livraison à prix et délai convenu) : https://www.maisons-france-confort.fr/mentions-legales/. HEXAOM Services est enregistré auprès de l'ORIAS en tant que Courtier en financement, Niveau 1, sous le numéro 14001345.Agence Maisons France Confort de Mareuil-lès-Meaux (77100)
- Téléphone :
- 01 60 09 28 30
- Adressse :
- Domexpo Est Village La Hayette
77100 Mareuil-lès-Meaux, France
