Maison neuve à
Saintines
(60410) Référence :
CY2432414_27
Prix du projet : Maison avec Terrain
prix 295 000 €
- 5 pièces
- 3 chambres
- Surface maison 90 m2
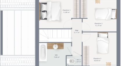
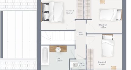
VENTE d'une maison T5 (90 m²) à Saint-Martin-Longueau
PROCHE GARE - MAISON 5 PIÈCES NEUVE
En vente : située à quelques kilomètres de Compiègne, venez découvrir cette maison de 5 pièces de 90 m² proche de la gare de Saint-Martin-Longueau (60700).
Cette maison possède 2 niveaux. Elle se divise en trois chambres, une cuisine et une salle de bains. La maison est neuve.
Le terrain du bien est de 540 m².
L'École Primaire Robert Personne est implantée à moins de 10 minutes à pied. Niveau transports, on trouve quatre gares à moins de 10 minutes en voiture. L'autoroute A1 et la nationale N31 sont accessibles à moins de 10 km. Il y a un tennis, une bibliothèque, trois commerces et une boulangerie à quelques minutes du logement.
Elle est proposée à l'achat pour 295 000 €.
Contactez Cedric YAHIAOUI (tél : 06-66-57-00-63) pour tout renseignement sur le bien et sur les démarches à suivre.
Annonce proposée par un Agent Commercial Partenaire.
Mentions légales
Terrain proposé par un partenaire foncier selon disponibilités et autorisation de publicité au prix de 80 900 €. Hors droit d'enregistrement et frais de notaire. Terrain + Maison proposés au prix de 295 000 € (Hors branchements et raccordements, papiers peints, peintures, revêtement de sol dans les chambres. Tarif modifiable sans préavis). Etiquette énergie : A. Différents modèles disponibles pour ce terrain. Assurances et garanties du constructeur (RC professionnelle, décennale, dommage ouvrage, garantie de remboursement de l'acompte, livraison à prix et délai convenu) : https://www.maisons-france-confort.fr/mentions-legales/. HEXAOM Services est enregistré auprès de l'ORIAS en tant que Courtier en financement, Niveau 1, sous le numéro 14001345.Agence Maisons France Confort de Mareuil-lès-Meaux (77100)
- Téléphone :
- 01 60 09 28 30
- Adressse :
- Domexpo Est Village La Hayette
77100 Mareuil-lès-Meaux, France
