Maison neuve à
Saintines (60410) Référence : CY2432414_45

Prix du projet : Maison avec Terrain

prix 250 000 €

  • 5 pièces
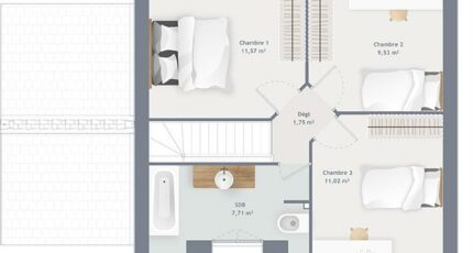
  • 3 chambres
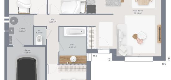
  • Surface maison 80 m2

VENTE d'une maison T5 (80 m²) à Saintines
PROCHE GARE - MAISON 5 PIÈCES NEUVE
En vente : à deux pas de Compiègne, votre agence Maisons France Confort Magny-le-Hongre est heureuse de vous présenter, dans Saintines (60410), proche de la gare, cette maison de 5 pièces de 80 m².
Il s'agit d'une maison de 2 niveaux. Son intérieur propose trois chambres, une cuisine et une salle de bains. Cette maison est neuve.
Le terrain du bien s'étend sur 432 m².
Il y a l'École Primaire L. Collas à moins de 10 minutes à pied. Niveau transports en commun, on trouve quatre gares à moins de 10 minutes en voiture. On trouve un accès à l'autoroute A1 à 6 km. Il y a une bibliothèque dans les environs.
Son prix de vente est de 250 000 €.
Contactez notre agence (YAHIAOUI Cedric : 06-66-57-00-63) pour plus d'informations sur la maison, sur les modalités de vente ou sur les démarches à suivre. Maisons France Confort Magny-le-Hongre vous accompagne dans tous vos projets immobiliers et à toutes les étapes de l'achat.

Annonce proposée par un Agent Commercial Partenaire.

Mentions légales

Terrain proposé par un partenaire foncier selon disponibilités et autorisation de publicité au prix de 80 900 €. Hors droit d'enregistrement et frais de notaire. Terrain + Maison proposés au prix de 250 000 € (Hors branchements et raccordements, papiers peints, peintures, revêtement de sol dans les chambres. Tarif modifiable sans préavis). Etiquette énergie : A. Différents modèles disponibles pour ce terrain. Assurances et garanties du constructeur (RC professionnelle, décennale, dommage ouvrage, garantie de remboursement de l'acompte, livraison à prix et délai convenu) : https://www.maisons-france-confort.fr/mentions-legales/. HEXAOM Services est enregistré auprès de l'ORIAS en tant que Courtier en financement, Niveau 1, sous le numéro 14001345.

Contactez l'agence de Mareuil-lès-Meaux

01 60 09 28 30

    * Champs obligatoires

    Vos informations sont traitées par HEXAOM et transmises à un conseiller commercial qui vous contactera afin de répondre à votre demande. Les plans et images présentés sur notre site sont la propriété d’HEXAOM et ne peuvent pas être reproduits sans son accord. Pour retrouver notre politique de protection des données personnelles et exercer vos droits conformément à la « loi informatique et liberté » cliquez-ici.