Maison neuve à
Senlis
(60300) Référence :
XDSS2411747_3
Prix du projet : Maison avec Terrain
prix 336 000 €
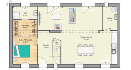
- 6 pièces
- 4 chambres
- Surface maison 105 m2
Maison à combles aménagés , située à 6minutes de Senlis , sur un terrain de 360m² viabilisé .
Proximité immédiate de l'école et de la boulangerie , environnement paisible et verdoyant , à 5 minutes de l"accès A1 , et 25 minutes de Roissy.
Cette maison dispose de 4 chambres avec rangements intégrés , séjour carrelé ,2 salles d'eau équipées ,cellier , packs alarme et domotique .
Tout nos plans sont 100% personnalisables et modifiables selon vos gouts et habitudes de vie .
Profitez également de notre expérience de plus de 13 ans sur le secteur , et bénéficiez d'un accompagnement intégral pour votre projet de vie : Financement , étude technique du terrain , gestion administrative .
Les frais annexes ( raccordements , viabilisation , puisards, enlèvements des terres excédentaires , chemin d'accès )inclus dans le prix de cette annonce .
Contactez moi pour une étude gratuite .
Rendez vous en agence ou à votre domicile .
M. DOS SANTOS XAVIER
06 16 27 53 27
Mentions légales
Terrain proposé par un partenaire foncier selon disponibilités et autorisation de publicité au prix de 99 000 €. Hors droit d'enregistrement et frais de notaire. Terrain + Maison proposés au prix de 336 000 € (Hors branchements et raccordements, papiers peints, peintures, revêtement de sol dans les chambres. Tarif modifiable sans préavis). Etiquette énergie : A. Différents modèles disponibles pour ce terrain. Assurances et garanties du constructeur (RC professionnelle, décennale, dommage ouvrage, garantie de remboursement de l'acompte, livraison à prix et délai convenu) : https://www.maisons-france-confort.fr/mentions-legales/. HEXAOM Services est enregistré auprès de l'ORIAS en tant que Courtier en financement, Niveau 1, sous le numéro 14001345.Agence Maisons France Confort de Compiègne (60200)
- Téléphone :
- 03 44 86 81 34
- Adressse :
- 47, cours Guynemer
60200 Compiègne, France
