Maison neuve à
Senlis (60300) Référence : XDSS2411747_10

Prix du projet : Maison avec Terrain

prix 336 000 €

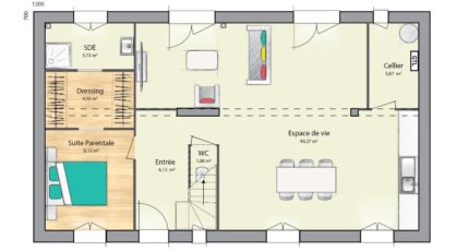
  • 6 pièces
  • 4 chambres
  • Surface maison 105 m2

Maison à combles aménagés , située à 6minutes de Senlis , sur un terrain de 360m² viabilisé .

Proximité immédiate de l'école et de la boulangerie , environnement paisible et verdoyant , à 5 minutes de l"accès A1 , et 25 minutes de Roissy.

Cette maison dispose de 4 chambres avec rangements intégrés , séjour carrelé ,2 salles d'eau équipées ,cellier , packs alarme et domotique .

Tout nos plans sont 100% personnalisables et modifiables selon vos gouts et habitudes de vie .

Profitez également de notre expérience de plus de 13 ans sur le secteur , et bénéficiez d'un accompagnement intégral pour votre projet de vie : Financement , étude technique du terrain , gestion administrative .

Les frais annexes ( raccordements , viabilisation , puisards, enlèvements des terres excédentaires , chemin d'accès )inclus dans le prix de cette annonce .

Contactez moi pour une étude gratuite .

Rendez vous en agence ou à votre domicile .

M. DOS SANTOS XAVIER
06 16 27 53 27

Mentions légales

Terrain proposé par un partenaire foncier selon disponibilités et autorisation de publicité au prix de 99 000 €. Hors droit d'enregistrement et frais de notaire. Terrain + Maison proposés au prix de 336 000 € (Hors branchements et raccordements, papiers peints, peintures, revêtement de sol dans les chambres. Tarif modifiable sans préavis). Etiquette énergie : A. Différents modèles disponibles pour ce terrain. Assurances et garanties du constructeur (RC professionnelle, décennale, dommage ouvrage, garantie de remboursement de l'acompte, livraison à prix et délai convenu) : https://www.maisons-france-confort.fr/mentions-legales/. HEXAOM Services est enregistré auprès de l'ORIAS en tant que Courtier en financement, Niveau 1, sous le numéro 14001345.

Contactez l'agence de Compiègne

03 44 86 81 34

    * Champs obligatoires

    Vos informations sont traitées par HEXAOM et transmises à un conseiller commercial qui vous contactera afin de répondre à votre demande. Les plans et images présentés sur notre site sont la propriété d’HEXAOM et ne peuvent pas être reproduits sans son accord. Pour retrouver notre politique de protection des données personnelles et exercer vos droits conformément à la « loi informatique et liberté » cliquez-ici.