Maison neuve à
Thaon
(14610) Référence :
JS2485102_2
Prix du projet : Maison avec Terrain
prix 234 000 €
- 5 pièces
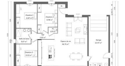
- 3 chambres
- Surface maison 95 m2
Maison T5 (95 m²) en vente à Thaon
IDÉALEMENT SITUÉE - MAISON 5 PIÈCES NEUVE
À vendre : à 10 km de Caen, nous vous présentons cette maison de 5 pièces de plain-pied de 95 m², idéalement située dans Thaon (14610).
Conçue de plain-pied, elle est composée de trois chambres, d'une cuisine et de deux salles de bains. Cette maison est neuve.
Le terrain du bien s'étend sur 377 m².
Cette maison est située dans un quartier recherché. Il y a l'École Primaire Yvonne Guégan à moins de 10 minutes à pied. Côté transports, on trouve deux gares (Saint-Germain-en-Laye Bel-Air-Fourqueux T13 et Bretteville-Norrey) à moins de 10 minutes en voiture. Les nationales N13 et N814 sont accessibles à moins de 8 km. Il y a un tennis et une épicerie à proximité de la maison.
Son prix de vente est de 234 000 €.
Prenez contact avec notre agence (Emilie HUE : 06-29-81-46-66) pour plus de renseignements sur la propriété, sur les modalités de vente ou sur les démarches à suivre. Maisons France Confort Bayeux est là pour vous accompagner à toutes les étapes de l'achat.
Annonce proposée par un Agent Commercial Partenaire.
Mentions légales
Terrain proposé par un partenaire foncier selon disponibilités et autorisation de publicité au prix de 79 000 €. Hors droit d'enregistrement et frais de notaire. Terrain + Maison proposés au prix de 234 000 € (Hors branchements et raccordements, papiers peints, peintures, revêtement de sol dans les chambres. Tarif modifiable sans préavis). Etiquette énergie : A. Différents modèles disponibles pour ce terrain. Assurances et garanties du constructeur (RC professionnelle, décennale, dommage ouvrage, garantie de remboursement de l'acompte, livraison à prix et délai convenu) : https://www.maisons-france-confort.fr/mentions-legales/. HEXAOM Services est enregistré auprès de l'ORIAS en tant que Courtier en financement, Niveau 1, sous le numéro 14001345.Agence Maisons France Confort de Bayeux (14400)
- Téléphone :
- 02 31 51 20 91
- Adressse :
- 2, rue Saint Loup
14400 Bayeux, France
