Maison neuve à
Tremblay-en-France
(93290) Référence :
TM2445719_1
Prix du projet : Maison avec Terrain
prix 370 000 €
- 5 pièces
- 3 chambres
- Surface maison 90 m2
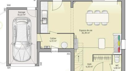
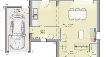
Maison T5 (90 m²) à vendre à Tremblay-en-France
MAISON 5 PIÈCES NEUVE
À proximité de la station Parc des Expositions (Paris à 25 min par le RER B), à vendre à Tremblay-en-France (93290), votre agence Maisons France Confort Magny-le-Hongre est ravie de vous présenter cette maison de 5 pièces de 90 m². Son intérieur compte trois chambres, une cuisine et une salle de bains.
Le terrain de la propriété est de 300 m².
C'est une maison de 2 niveaux. Elle est neuve.
L'École Primaire André Malraux est implantée à moins de 10 minutes à pied. Niveau transports, on trouve le RER B et D ainsi que 24 gares à moins de 10 minutes en voiture. Il y a une bibliothèque, deux commerces et une épicerie à proximité.
Elle est à vendre pour la somme de 370 000 €.
Prenez contact avec notre constructeur (MELES Teddy : 06-17-56-83-36) pour tout renseignement sur la maison, sur les modalités de vente ou sur les démarches à suivre. Maisons France Confort Magny-le-Hongre vous accompagne dans tous vos projets immobiliers et à toutes les étapes de l'achat.
Annonce proposée par un Agent Commercial Partenaire.
Mentions légales
Terrain proposé par un partenaire foncier selon disponibilités et autorisation de publicité au prix de 175 000 €. Hors droit d'enregistrement et frais de notaire. Terrain + Maison proposés au prix de 370 000 € (Hors branchements et raccordements, papiers peints, peintures, revêtement de sol dans les chambres. Tarif modifiable sans préavis). Etiquette énergie : A. Différents modèles disponibles pour ce terrain. Assurances et garanties du constructeur (RC professionnelle, décennale, dommage ouvrage, garantie de remboursement de l'acompte, livraison à prix et délai convenu) : https://www.maisons-france-confort.fr/mentions-legales/. HEXAOM Services est enregistré auprès de l'ORIAS en tant que Courtier en financement, Niveau 1, sous le numéro 14001345.Agence Maisons France Confort de Magny-le-Hongre (77700)
- Téléphone :
- 01 84 80 92 96
- Adressse :
- 11 rue de Courtalin
77700 Magny-le-Hongre, France
