Maison neuve à
Tremblay-en-France
(93290) Référence :
TM2445719_2
Prix du projet : Maison avec Terrain
prix 380 000 €
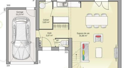
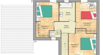
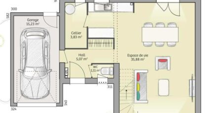
- 5 pièces
- 3 chambres
- Surface maison 90 m2
Maison de 5 pièces (90 m²) en vente à Tremblay-en-France
MAISON 5 PIÈCES NEUVE
En vente : à côté de la station Parc des Expositions du RER B (25 min de Paris), votre agence Maisons France Confort Magny-le-Hongre est ravie de vous présenter cette maison de 5 pièces de 90 m² et de 300 m² de terrain à Tremblay-en-France (93290).
C'est une maison de 2 niveaux. Elle inclut trois chambres, une cuisine et une salle de bains. Cette maison est neuve.
Il y a l'École Primaire André Malraux à moins de 10 minutes à pied. Niveau transports en commun, on trouve les lignes B et D du RER ainsi que 24 gares à moins de 10 minutes en voiture. Il y a une bibliothèque, deux commerces et une épicerie dans les environs.
Elle est proposée à l'achat pour 380 000 €.
N'hésitez pas à prendre contact avec Teddy MELES (tél : 06-17-56-83-36) pour plus d'informations sur la maison ou sur les démarches à suivre.
Annonce proposée par un Agent Commercial Partenaire.
Mentions légales
Terrain proposé par un partenaire foncier selon disponibilités et autorisation de publicité au prix de 175 000 €. Hors droit d'enregistrement et frais de notaire. Terrain + Maison proposés au prix de 380 000 € (Hors branchements et raccordements, papiers peints, peintures, revêtement de sol dans les chambres. Tarif modifiable sans préavis). Etiquette énergie : A. Différents modèles disponibles pour ce terrain. Assurances et garanties du constructeur (RC professionnelle, décennale, dommage ouvrage, garantie de remboursement de l'acompte, livraison à prix et délai convenu) : https://www.maisons-france-confort.fr/mentions-legales/. HEXAOM Services est enregistré auprès de l'ORIAS en tant que Courtier en financement, Niveau 1, sous le numéro 14001345.Agence Maisons France Confort de Magny-le-Hongre (77700)
- Téléphone :
- 01 84 80 92 96
- Adressse :
- 11 rue de Courtalin
77700 Magny-le-Hongre, France
