Maison neuve à
Tremblay-en-France (93290) Référence : TM2445719_11

Prix du projet : Maison avec Terrain

prix 260 000 €

  • 5 pièces
  • 3 chambres
  • Surface maison 90 m2

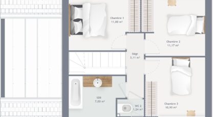
VENTE : maison de 5 pièces (90 m²) à Tremblay-en-France
MAISON 5 PIÈCES NEUVE
À côté du RER B (station Parc des Expositions, 25 min de Paris), nous sommes heureux de vous proposer cette maison de 5 pièces de 90 m² à Tremblay-en-France (93290). Son intérieur est composé de trois chambres, d'une cuisine et d'une salle de bains.
Le terrain de la propriété est de 300 m².
Cette maison possède 2 niveaux. Elle est neuve.
Il y a l'École Primaire André Malraux à moins de 10 minutes à pied. Niveau transports, on trouve deux lignes de RER (B et D) ainsi que 24 gares à moins de 10 minutes en voiture. Il y a une bibliothèque, deux commerces et une épicerie à quelques minutes à peine.
Son prix de vente est de 260 000 €.
Contactez notre agence (MELES Teddy : 06-17-56-83-36) pour tout renseignement sur la maison ou sur les modalités de vente.

Annonce proposée par un Agent Commercial Partenaire.

Mentions légales

Terrain proposé par un partenaire foncier selon disponibilités et autorisation de publicité au prix de 175 000 €. Hors droit d'enregistrement et frais de notaire. Terrain + Maison proposés au prix de 260 000 € (Hors branchements et raccordements, papiers peints, peintures, revêtement de sol dans les chambres. Tarif modifiable sans préavis). Etiquette énergie : A. Différents modèles disponibles pour ce terrain. Assurances et garanties du constructeur (RC professionnelle, décennale, dommage ouvrage, garantie de remboursement de l'acompte, livraison à prix et délai convenu) : https://www.maisons-france-confort.fr/mentions-legales/. HEXAOM Services est enregistré auprès de l'ORIAS en tant que Courtier en financement, Niveau 1, sous le numéro 14001345.

Contactez l'agence de Magny-le-Hongre

01 84 80 92 96

    * Champs obligatoires

    Vos informations sont traitées par HEXAOM et transmises à un conseiller commercial qui vous contactera afin de répondre à votre demande. Les plans et images présentés sur notre site sont la propriété d’HEXAOM et ne peuvent pas être reproduits sans son accord. Pour retrouver notre politique de protection des données personnelles et exercer vos droits conformément à la « loi informatique et liberté » cliquez-ici.