Maison neuve à
Verberie
(60410) Référence :
FBsaintines99_3
Prix du projet : Maison avec Terrain
prix 257 000 €
- 5 pièces
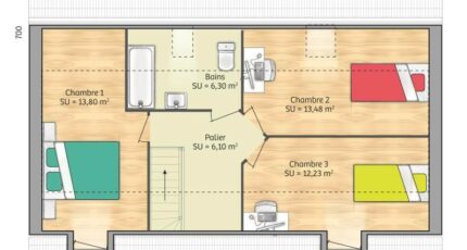
- 3 chambres
- Surface maison 80 m2
Maison de 5 pièces (80 m²) à vendre à Saintines
EMPLACEMENT PRIVILÉGIÉ - MAISON 5 PIÈCES NEUVE
À vendre à 13 km de Compiègne, votre agence Maisons France Confort Beauvais est heureuse de vous proposer, bénéficiant d'un emplacement d'exception dans Saintines (60410), cette maison de 5 pièces de 80 m².
C'est une maison de 2 niveaux. Elle offre trois chambres, une cuisine et une salle de bains. La maison est neuve.
Le terrain de la propriété est de 434 m².
Ce bien est situé dans un secteur attractif. Il y a l'École Primaire L. Collas à moins de 10 minutes à pied. Niveau transports, on trouve quatre gares à moins de 10 minutes en voiture. On trouve un accès à l'autoroute A1 à 6 km. Il y a une bibliothèque dans les environs.
Il est proposé à l'achat pour 257 000 €.
Contactez notre constructeur (Fabrice BONELLO : 06-09-50-50-09) pour plus de renseignements sur la maison, sur les démarches à suivre ou sur les modalités de vente.
Mentions légales
Terrain proposé par un partenaire foncier selon disponibilités et autorisation de publicité au prix de 80 900 €. Hors droit d'enregistrement et frais de notaire. Terrain + Maison proposés au prix de 257 000 € (Hors branchements et raccordements, papiers peints, peintures, revêtement de sol dans les chambres. Tarif modifiable sans préavis). Etiquette énergie : A. Différents modèles disponibles pour ce terrain. Assurances et garanties du constructeur (RC professionnelle, décennale, dommage ouvrage, garantie de remboursement de l'acompte, livraison à prix et délai convenu) : https://www.maisons-france-confort.fr/mentions-legales/. HEXAOM Services est enregistré auprès de l'ORIAS en tant que Courtier en financement, Niveau 1, sous le numéro 14001345.Agence Maisons France Confort de Beauvais (60000)
- Téléphone :
- 03 44 04 40 04
- Adressse :
- 42 rue Pierre Jacoby
60000 Beauvais, France
