Maison neuve à
Vismes
(80140) Référence :
DD_eu42_02-3_2
Prix du projet : Maison avec Terrain
prix 163 800 €
- 4 pièces
- 3 chambres
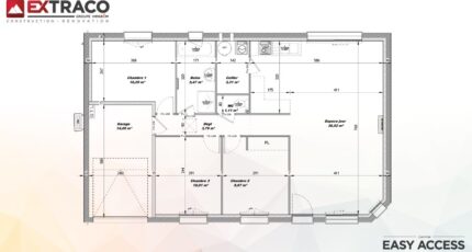
- Surface maison 82 m2
Maison de 4 pièces (82 m²) en vente à Vismes
MAISON 4 PIÈCES NEUVE
En vente : localisée à 27 km de la Manche, votre agence Les Maisons Extraco Eu est ravie de vous proposer cette maison de 4 pièces de plain-pied de 82 m² et de 904 m² de terrain à Vismes (80140).
Conçue de plain-pied, elle se divise en trois chambres, une cuisine et une salle de bains. La maison est neuve.
Une école élémentaire est implantée dans le quartier. Côté transports en commun, on trouve deux gares (Longroy-Gamaches et Blangy-sur-Bresle) à moins de 10 minutes en voiture. On trouve un accès à l'autoroute A28 à 3 km.
Son prix de vente est de 163 800 €.
N'hésitez pas à prendre contact avec Delphine DERULLES (06-67-13-79-40) pour toute question sur cette maison, sur les démarches à suivre ou sur les modalités de vente. Donnez vie à vos projets immobiliers avec Les Maisons Extraco Eu.