Maison neuve à
Wingles
(62410) Référence :
TH2442428_7
Prix du projet : Maison avec Terrain
prix 335 906 €
- 6 pièces
- 5 chambres
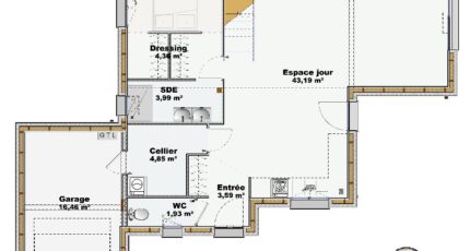
- Surface maison 114 m2
MAISON OSSATURE BOIS
Wingles : maison T6 (114 m²) en vente
IDÉALEMENT SITUÉE - MAISON 6 PIÈCES NEUVE
Idéalement située dans Wingles (62410), Maisons France Confort Hénin-Beaumont vous présente cette maison de 6 pièces de 114 m². Son intérieur compte cinq chambres, une cuisine et deux salles de bains.
Le terrain de la maison s'étend sur 429 m².
Cette maison possède 2 niveaux. Elle est neuve.
Elle se trouve dans un secteur attractif. Des écoles de tous niveaux sont implantées à moins de 10 minutes à pied, tout comme une crèche. Niveau transports en commun, on trouve 3 gares à moins de 10 minutes en voiture. Il y a une bibliothèque, des boulangeries, des commerces, deux supermarchés, deux boucheries-charcuteries et quatre épiceries à quelques minutes à peine. Le marché Centre-Ville anime le quartier tous les mercredis matin.
Son prix de vente est de 335 906 €.
Prenez contact avec Thomas HAUSTRATE (tél : 06-49-81-47-04) pour plus d'informations sur ce bien et sur les démarches à suivre. Maisons France Confort Hénin-Beaumont vous accompagne dans tous vos projets immobiliers et à toutes les étapes de votre projet.
Mentions légales
Terrain proposé par un partenaire foncier selon disponibilités et autorisation de publicité au prix de 61 100 €. Hors droit d'enregistrement et frais de notaire. Terrain + Maison proposés au prix de 335 906 € (Hors branchements et raccordements, papiers peints, peintures, revêtement de sol dans les chambres. Tarif modifiable sans préavis). Etiquette énergie : A. Différents modèles disponibles pour ce terrain. Assurances et garanties du constructeur (RC professionnelle, décennale, dommage ouvrage, garantie de remboursement de l'acompte, livraison à prix et délai convenu) : https://www.maisons-france-confort.fr/mentions-legales/. HEXAOM Services est enregistré auprès de l'ORIAS en tant que Courtier en financement, Niveau 1, sous le numéro 14001345.Agence Maisons France Confort de Hénin-Beaumont (62110)
- Téléphone :
- 03 21 14 37 05
- Adressse :
- Chemin de Noyelles
62110 Hénin-Beaumont, France
