Maison neuve à
Yèbles (77390) Référence : CY2406798_1

Prix du projet : Maison avec Terrain

prix 272 000 €

  • 5 pièces
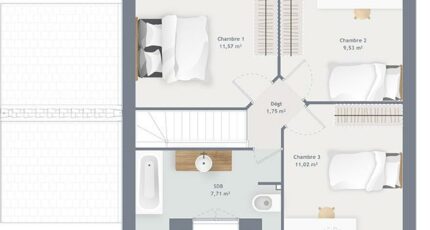
  • 3 chambres
  • Surface maison 80 m2

VENTE : maison de 5 pièces (80 m²) à Yèbles
IDÉALEMENT SITUÉE - MAISON 5 PIÈCES NEUVE
En vente : à côté de la gare de Verneuil-l'Étang (Paris à 30 min avec le Transilien P), découvrez cette maison de 5 pièces de 80 m² et de 655 m² de terrain idéalement située dans Yèbles (77390). Elle offre trois chambres, une cuisine et une salle de bains.
Cette maison possède 2 niveaux. Elle est neuve.
La maison est située dans un quartier prisé. On y trouve une école primaire. Niveau transports, il y a deux gares (Verneuil-l'Étang et Mormant) à moins de 10 minutes en voiture.
Son prix de vente est de 272 000 €.
N'hésitez pas à prendre contact avec notre agence (Cedric YAHIAOUI : 06-66-57-00-63) pour plus d'informations sur la maison ou sur les démarches à suivre. Maisons France Confort Mareuil-lès-Meaux est là pour vous accompagner à toutes les étapes de l'achat.

Annonce proposée par un Agent Commercial Partenaire.

Mentions légales

Terrain proposé par un partenaire foncier selon disponibilités et autorisation de publicité au prix de 128 000 €. Hors droit d'enregistrement et frais de notaire. Terrain + Maison proposés au prix de 272 000 € (Hors branchements et raccordements, papiers peints, peintures, revêtement de sol dans les chambres. Tarif modifiable sans préavis). Etiquette énergie : A. Différents modèles disponibles pour ce terrain. Assurances et garanties du constructeur (RC professionnelle, décennale, dommage ouvrage, garantie de remboursement de l'acompte, livraison à prix et délai convenu) : https://www.maisons-france-confort.fr/mentions-legales/. HEXAOM Services est enregistré auprès de l'ORIAS en tant que Courtier en financement, Niveau 1, sous le numéro 14001345.

Contactez l'agence de Mareuil-lès-Meaux

01 60 09 28 30

    * Champs obligatoires

    Vos informations sont traitées par HEXAOM et transmises à un conseiller commercial qui vous contactera afin de répondre à votre demande. Les plans et images présentés sur notre site sont la propriété d’HEXAOM et ne peuvent pas être reproduits sans son accord. Pour retrouver notre politique de protection des données personnelles et exercer vos droits conformément à la « loi informatique et liberté » cliquez-ici.