Maison neuve à
Yèbles (77390) Référence : CY2406798_2

Prix du projet : Maison avec Terrain

prix 290 000 €

  • 5 pièces
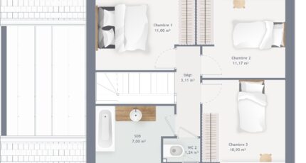
  • 3 chambres
  • Surface maison 90 m2

VENTE : maison de 5 pièces (90 m²) à Yèbles
IDÉALEMENT SITUÉE - MAISON 5 PIÈCES NEUVE
Proche du Transilien P (gare de Verneuil-l'Étang, 30 min de Paris), à vendre idéalement située dans Yèbles (77390), découvrez cette maison de 5 pièces de 90 m². Son intérieur comporte trois chambres, une cuisine et une salle de bains.
Le terrain de cette maison s'étend sur 655 m².
Il s'agit d'une maison de 2 niveaux. Elle est neuve.
La maison se situe dans un quartier attractif. Une école primaire y est implantée. Niveau transports, il y a deux gares (Verneuil-l'Étang et Mormant) à moins de 10 minutes en voiture.
Elle est à vendre pour la somme de 290 000 €.
N'hésitez pas à prendre contact avec notre agence (Cedric YAHIAOUI : 06-66-57-00-63) pour tout renseignement sur la maison ou sur les démarches à suivre. Concrétisez vos projets immobiliers avec Maisons France Confort Mareuil-lès-Meaux.

Annonce proposée par un Agent Commercial Partenaire.

Mentions légales

Terrain proposé par un partenaire foncier selon disponibilités et autorisation de publicité au prix de 128 000 €. Hors droit d'enregistrement et frais de notaire. Terrain + Maison proposés au prix de 290 000 € (Hors branchements et raccordements, papiers peints, peintures, revêtement de sol dans les chambres. Tarif modifiable sans préavis). Etiquette énergie : A. Différents modèles disponibles pour ce terrain. Assurances et garanties du constructeur (RC professionnelle, décennale, dommage ouvrage, garantie de remboursement de l'acompte, livraison à prix et délai convenu) : https://www.maisons-france-confort.fr/mentions-legales/. HEXAOM Services est enregistré auprès de l'ORIAS en tant que Courtier en financement, Niveau 1, sous le numéro 14001345.

Contactez l'agence de Mareuil-lès-Meaux

01 60 09 28 30

    * Champs obligatoires

    Vos informations sont traitées par HEXAOM et transmises à un conseiller commercial qui vous contactera afin de répondre à votre demande. Les plans et images présentés sur notre site sont la propriété d’HEXAOM et ne peuvent pas être reproduits sans son accord. Pour retrouver notre politique de protection des données personnelles et exercer vos droits conformément à la « loi informatique et liberté » cliquez-ici.