Maison neuve à
La Chapelle-Aubareil
(24290) Référence :
BL2477455
Prix du projet : Maison avec Terrain
prix 245 900 €
- 3 pièces
- 2 chambres
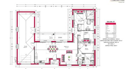
- Surface maison 106 m2
Située sur la commune de La Chapelle-Aubareil, à proximité de Montignac et de Sarlat-la-Canéda, venez découvrir ce beau projet de maison à construire dans un environnement calme et verdoyant.
Cette maison moderne de 106 m², en forme de U, offre une conception à la fois esthétique et fonctionnelle, idéale pour profiter pleinement de la luminosité naturelle et de l'extérieur.
Elle se compose de :
2 chambres, dont une suite parentale avec espace dédié
1 bureau, parfait pour le télétravail ou une chambre d'appoint
Une pièce de vie spacieuse et lumineuse ouverte sur l'extérieur
Un grand garage attenant
Implantée sur un terrain plat, cette maison bénéficie d'une excellente exposition, idéale pour profiter du soleil tout au long de la journée.
Projet personnalisable selon vos envies.
Contacter LEYMARIE Blandine au O7.64.52.63.39 Alpha Constructions, Agence de Boulazac Isle Manoire
Mentions légales
Terrain proposé par un partenaire foncier selon disponibilité dans le cadre d’un projet de construction avec Alpha Constructions. Les descriptions, photographies, surfaces et prix illustrant l’annonce sont fournies à titre indicatif et ne sont pas contractuels. Non soumis au DPE. Différents modèles disponibles.Agence Alpha Constructions de Boulazac (24750)
- Téléphone :
- 05 53 09 46 75
- Adressse :
- 24 Rue Yvon Delbos
24750 Boulazac, France