Maison neuve à
Sarlat-la-Canéda (24200) Référence : BL2386156

Prix du projet : Maison avec Terrain

prix 295 000 €

  • 3 pièces
  • 2 chambres
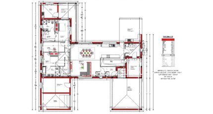
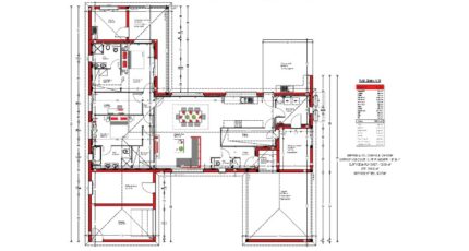
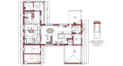
  • Surface maison 130 m2

Sur la commune prisée de Sarlat-la-Canéda, magnifique maison moderne de plain-pied d'environ 130 m², implantée sur un terrain dans un environnement calme et verdoyant.

Cette maison se compose de :

2 chambres confortables

1 bureau

spacieuse pièce de vie lumineuse avec grandes baies vitrées

cuisine ouverte sur le séjour

suite parentale possible selon aménagements

2 salles d'eau

nombreux rangements

Les atouts majeurs du bien :

terrasse couverte pour profiter des beaux jours

cuisine d'été conviviale

garage attenant

belle architecture contemporaine, lignes soignées et prestations de qualité

Construction conforme aux normes en vigueur, très bonne isolation, confort et fonctionnalité au rendez-vous.

Contactez Blandine LEYMARIE (O7-64-52-63-39) pour toute information sur la maison. Faites de vos projets immobiliers une réalité avec Alpha Constructions Boulazac Isle Manoire.

Mentions légales

Terrain proposé par un partenaire foncier selon disponibilité dans le cadre d’un projet de construction avec Alpha Constructions. Les descriptions, photographies, surfaces et prix illustrant l’annonce sont fournies à titre indicatif et ne sont pas contractuels. Non soumis au DPE. Différents modèles disponibles.

Contactez l'agence de Boulazac

05 53 09 46 75

    * Champs obligatoires

    Vos informations sont traitées par HEXAOM et transmises à un conseiller commercial qui vous contactera afin de répondre à votre demande. Les plans et images présentés sur notre site sont la propriété d’HEXAOM et ne peuvent pas être reproduits sans son accord. Pour retrouver notre politique de protection des données personnelles et exercer vos droits conformément à la « loi informatique et liberté » cliquez-ici.