Maison neuve à
Paulin
(24590) Référence :
BL2477653
Prix du projet : Maison avec Terrain
prix 212 900 €
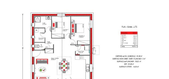
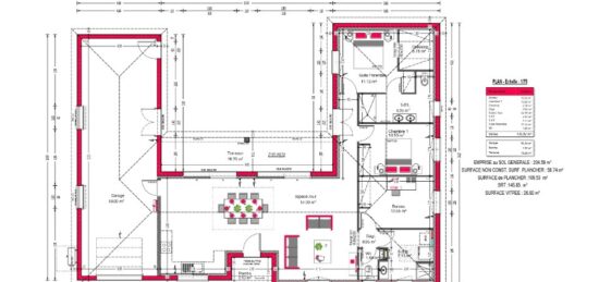
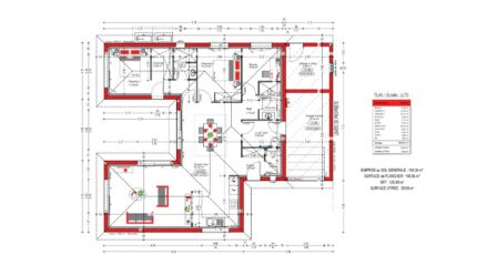
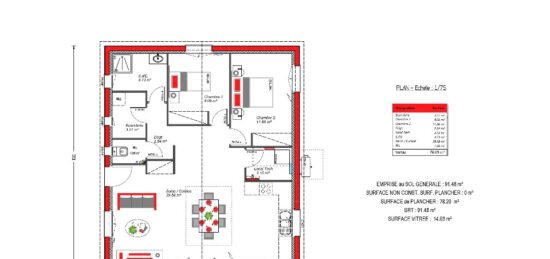
- 3 pièces
- 2 chambres
- Surface maison 98 m2
Située sur la commune de Paulin, venez découvrir ce magnifique projet de maison à construire dans un environnement calme et verdoyant.
Implantée sur un terrain plat de 4 300 m², cette maison offre un cadre de vie idéal pour les amoureux de nature et de tranquillité.
D'une surface de 98 m², cette maison en forme de U séduit par son architecture moderne et sa conception tournée vers l'extérieur, avec de larges baies vitrées apportant une luminosité exceptionnelle tout au long de la journée grâce à son exposition plein sud.
Elle se compose de :
2 chambres, dont une suite parentale
1 bureau, idéal pour le télétravail ou une chambre d'appoint
Une pièce de vie spacieuse et lumineuse ouverte sur la terrasse
Un garage attenant
Un garage à vélo pratique et fonctionnel
Côté extérieur, vous serez séduit par une terrasse intégrée dans l'angle du U, avec une finition en parement apportant charme et caractère à l'ensemble.
Environnement campagne, calme assuré tout en restant proche des commodités.
Projet entièrement personnalisable selon vos envies et votre budget.
Pour toute information :
LEYMARIE Blandine : O7.64.52.63.39
Alpha Constructions - Agence de Boulazac Isle Manoire vous accompagne dans tous vos projets, de la recherche de votre terrain à la création de votre maison.
Mentions légales
Terrain proposé par un partenaire foncier selon disponibilité dans le cadre d’un projet de construction avec Alpha Constructions. Les descriptions, photographies, surfaces et prix illustrant l’annonce sont fournies à titre indicatif et ne sont pas contractuels. Non soumis au DPE. Différents modèles disponibles.Agence Alpha Constructions de Boulazac (24750)
- Téléphone :
- 05 53 09 46 75
- Adressse :
- 24 Rue Yvon Delbos
24750 Boulazac, France