Maison neuve à
Dammartin-en-Serve
(78111) Référence :
MB2416469_3
Prix du projet : Maison avec Terrain
prix 282 292 €
- 6 pièces
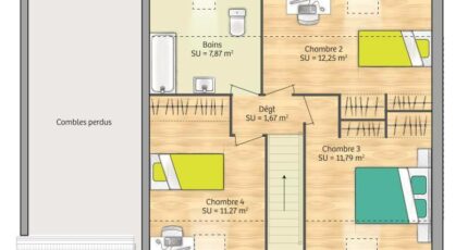
- 4 chambres
- Surface maison 89 m2
VENTE d'une maison de 6 pièces (89 m²) à Dammartin-en-Serve
EMPLACEMENT PRIVILÉGIÉ - MAISON 6 PIÈCES NEUVE
À proximité du Transilien J (gare de Rosny-sur-Seine, 45 min de Paris), découvrez cette maison de 6 pièces de 89 m² bénéficiant d'un emplacement d'exception dans Dammartin-en-Serve (78111). Son intérieur offre quatre chambres, une cuisine et une salle de bains.
Le terrain de la propriété est de 811 m².
Cette maison possède 2 niveaux. Elle est neuve.
La maison se situe dans un secteur prisé. On y trouve l'École Primaire G. Bruhat. Niveau transports en commun, on trouve les gares Bréval et Rosny-sur-Seine à moins de 10 minutes en voiture. Il y a une bibliothèque à quelques minutes du bien.
Elle est à vendre pour la somme de 282 292 €.
Contactez Mickael BESNARD (06-15-50-56-87) pour plus de renseignements sur le bien ou sur les modalités de vente.
Annonce proposée par un Agent Commercial Partenaire.
Mentions légales
Terrain proposé par un partenaire foncier selon disponibilités et autorisation de publicité au prix de 109 900 €. Hors droit d'enregistrement et frais de notaire. Terrain + Maison proposés au prix de 282 292 € (Hors branchements et raccordements, papiers peints, peintures, revêtement de sol dans les chambres. Tarif modifiable sans préavis). Etiquette énergie : A. Différents modèles disponibles pour ce terrain. Assurances et garanties du constructeur (RC professionnelle, décennale, dommage ouvrage, garantie de remboursement de l'acompte, livraison à prix et délai convenu) : https://www.maisons-france-confort.fr/mentions-legales/. HEXAOM Services est enregistré auprès de l'ORIAS en tant que Courtier en financement, Niveau 1, sous le numéro 14001345.Agence Maisons France Confort de Vernon (27200)
- Téléphone :
- 02 32 51 45 05
- Adressse :
- 38 rue Carnot
27200 Vernon, France
