Maison neuve à
Dammartin-en-Serve
(78111) Référence :
MB2416469_5
Prix du projet : Maison avec Terrain
prix 280 292 €
- 6 pièces
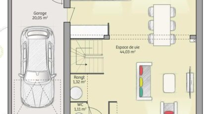
- 4 chambres
- Surface maison 91 m2
Maison T6 (91 m²) en vente à Dammartin-en-Serve
EMPLACEMENT PRIVILÉGIÉ - MAISON 6 PIÈCES NEUVE
En vente : proche de la gare de Rosny-sur-Seine (Paris à 45 min par le Transilien J), bénéficiant d'un emplacement d'exception dans Dammartin-en-Serve (78111), nous sommes ravis de vous proposer cette maison de 6 pièces de 91 m². Son intérieur compte quatre chambres, une cuisine et une salle de bains.
Le terrain de la maison s'étend sur 811 m².
Il s'agit d'une maison de 2 niveaux. Elle est neuve.
Cette propriété se situe dans un quartier prisé. L'École Primaire G. Bruhat y est implantée. Côté transports, il y a deux gares (Bréval et Rosny-sur-Seine) à moins de 10 minutes en voiture. On trouve une bibliothèque à quelques minutes.
Elle est proposée à l'achat pour 280 292 €.
Prenez contact avec Mickael BESNARD (06-15-50-56-87) pour obtenir de plus amples informations sur la maison.
Annonce proposée par un Agent Commercial Partenaire.
Mentions légales
Terrain proposé par un partenaire foncier selon disponibilités et autorisation de publicité au prix de 109 900 €. Hors droit d'enregistrement et frais de notaire. Terrain + Maison proposés au prix de 280 292 € (Hors branchements et raccordements, papiers peints, peintures, revêtement de sol dans les chambres. Tarif modifiable sans préavis). Etiquette énergie : A. Différents modèles disponibles pour ce terrain. Assurances et garanties du constructeur (RC professionnelle, décennale, dommage ouvrage, garantie de remboursement de l'acompte, livraison à prix et délai convenu) : https://www.maisons-france-confort.fr/mentions-legales/. HEXAOM Services est enregistré auprès de l'ORIAS en tant que Courtier en financement, Niveau 1, sous le numéro 14001345.Agence Maisons France Confort de Vernon (27200)
- Téléphone :
- 02 32 51 45 05
- Adressse :
- 38 rue Carnot
27200 Vernon, France
