Maison neuve à
Dammartin-en-Serve (78111) Référence : MB2416441_4

Prix du projet : Maison avec Terrain

prix 271 989 €

  • 6 pièces
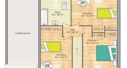
  • 4 chambres
  • Surface maison 89 m2

Maison T6 (89 m²) en vente à Dammartin-en-Serve
EMPLACEMENT PRIVILÉGIÉ - MAISON 6 PIÈCES NEUVE
En vente : à proximité de la gare de Rosny-sur-Seine (Paris à 45 min par le Transilien J), Maisons France Confort Vernon vous propose cette maison de 6 pièces de 89 m² bénéficiant d'un emplacement privilégié dans Dammartin-en-Serve (78111). Elle compte quatre chambres, une cuisine et une salle de bains.
Le terrain de la propriété s'étend sur 527 m².
Cette maison comporte 2 niveaux. Elle est neuve.
La maison se trouve dans un quartier convoité. L'École Primaire G. Bruhat y est implantée. Niveau transports en commun, il y a deux gares (Bréval et Rosny-sur-Seine) à moins de 10 minutes en voiture. On trouve une bibliothèque à proximité de la maison.
Elle est à vendre pour la somme de 271 989 €.
Contactez notre agence (BESNARD Mickael : 06-15-50-56-87) pour obtenir de plus amples renseignements sur la maison ou sur les démarches à suivre. Maisons France Confort Vernon vous accompagne à toutes les étapes de l'achat et dans tous vos projets immobiliers.

Annonce proposée par un Agent Commercial Partenaire.

Mentions légales

Terrain proposé par un partenaire foncier selon disponibilités et autorisation de publicité au prix de 99 900 €. Hors droit d'enregistrement et frais de notaire. Terrain + Maison proposés au prix de 271 989 € (Hors branchements et raccordements, papiers peints, peintures, revêtement de sol dans les chambres. Tarif modifiable sans préavis). Etiquette énergie : A. Différents modèles disponibles pour ce terrain. Assurances et garanties du constructeur (RC professionnelle, décennale, dommage ouvrage, garantie de remboursement de l'acompte, livraison à prix et délai convenu) : https://www.maisons-france-confort.fr/mentions-legales/. HEXAOM Services est enregistré auprès de l'ORIAS en tant que Courtier en financement, Niveau 1, sous le numéro 14001345.

Contactez l'agence de Vernon

02 32 51 45 05

    * Champs obligatoires

    Vos informations sont traitées par HEXAOM et transmises à un conseiller commercial qui vous contactera afin de répondre à votre demande. Les plans et images présentés sur notre site sont la propriété d’HEXAOM et ne peuvent pas être reproduits sans son accord. Pour retrouver notre politique de protection des données personnelles et exercer vos droits conformément à la « loi informatique et liberté » cliquez-ici.