Maison neuve à
Dammartin-en-Serve
(78111) Référence :
MD2417349_2
Prix du projet : Maison avec Terrain
prix 260 077 €
- 6 pièces
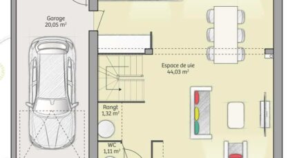
- 4 chambres
- Surface maison 91 m2
Maison F6 (91 m²) à vendre à Dammartin-en-Serve
QUARTIER RECHERCHÉ - MAISON 6 PIÈCES NEUVE
En vente : à proximité du Transilien J (gare de Rosny-sur-Seine, 45 min de Paris), nous vous proposons cette maison de 6 pièces de 91 m² et de 405 m² de terrain située dans un secteur prisé de Dammartin-en-Serve (78111). Elle propose quatre chambres, une cuisine et une salle de bains.
Cette maison possède 2 niveaux. Elle est neuve.
La propriété est située dans un quartier convoité. On y trouve l'École Primaire G. Bruhat. Niveau transports en commun, on trouve les gares Bréval et Rosny-sur-Seine à moins de 10 minutes en voiture. Il y a une bibliothèque à proximité.
Son prix de vente est de 260 077 €.
N'hésitez pas à prendre contact avec Murielle DEBART (tél : 06-29-34-36-28) pour toute question sur la maison, sur les démarches à suivre ou sur les modalités de vente.
Mentions légales
Terrain proposé par un partenaire foncier selon disponibilités et autorisation de publicité au prix de 99 900 €. Hors droit d'enregistrement et frais de notaire. Terrain + Maison proposés au prix de 260 077 € (Hors branchements et raccordements, papiers peints, peintures, revêtement de sol dans les chambres. Tarif modifiable sans préavis). Etiquette énergie : A. Différents modèles disponibles pour ce terrain. Assurances et garanties du constructeur (RC professionnelle, décennale, dommage ouvrage, garantie de remboursement de l'acompte, livraison à prix et délai convenu) : https://www.maisons-france-confort.fr/mentions-legales/. HEXAOM Services est enregistré auprès de l'ORIAS en tant que Courtier en financement, Niveau 1, sous le numéro 14001345.Agence Maisons France Confort de Vernon (27200)
- Téléphone :
- 02 32 51 45 05
- Adressse :
- 38 rue Carnot
27200 Vernon, France
