Maison neuve à
Isigny-sur-Mer (14230) Référence : JS2484892_1

Prix du projet : Maison avec Terrain

prix 204 844 €

  • 7 pièces
  • 5 chambres
  • Surface maison 102 m2

Maison de 7 pièces (102 m²) en vente à Isigny-sur-Mer
IDÉALEMENT SITUÉE - MAISON 7 PIÈCES NEUVE
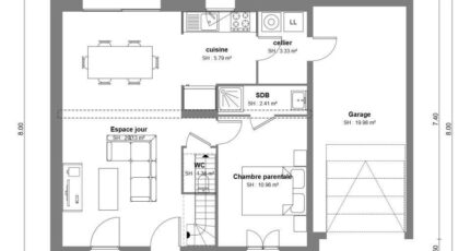
Maisons France Confort Bayeux vous présente cette maison de 7 pièces de 102 m² et de 427 m² de terrain idéalement située dans Isigny-sur-Mer (14230). Elle se divise en cinq chambres, une cuisine et deux salles de bains.
Cette maison possède 2 niveaux. Elle est neuve.
La maison se situe dans un secteur recherché. L'École Primaire Jacques Prévert, le Collège du Val d'Aure et le Collège du Marais sont implantés à moins de 10 minutes en voiture. Niveau transports en commun, il y a la gare Lison dans un rayon de 10 km. Les nationales N13 et N174 sont accessibles à moins de 8 km. On trouve un port de plaisance, des tennis, deux bibliothèques, un bassin de natation, des commerces, des épiceries, une supérette, deux bureaux de poste et quatre poissonneries dans les environs. Enfin, 2 marchés animent le quartier.
Elle est à vendre pour la somme de 204 844 €.
N'hésitez pas à prendre contact avec notre agence (HUE Emilie : 06-29-81-46-66) pour plus de renseignements sur la maison.

Annonce proposée par un Agent Commercial Partenaire.

Mentions légales

Terrain proposé par un partenaire foncier selon disponibilités et autorisation de publicité au prix de 34 844 €. Hors droit d'enregistrement et frais de notaire. Terrain + Maison proposés au prix de 204 844 € (Hors branchements et raccordements, papiers peints, peintures, revêtement de sol dans les chambres. Tarif modifiable sans préavis). Etiquette énergie : A. Différents modèles disponibles pour ce terrain. Assurances et garanties du constructeur (RC professionnelle, décennale, dommage ouvrage, garantie de remboursement de l'acompte, livraison à prix et délai convenu) : https://www.maisons-france-confort.fr/mentions-legales/. HEXAOM Services est enregistré auprès de l'ORIAS en tant que Courtier en financement, Niveau 1, sous le numéro 14001345.

Contactez l'agence de Bayeux

02 31 51 20 91

    * Champs obligatoires

    Vos informations sont traitées par HEXAOM et transmises à un conseiller commercial qui vous contactera afin de répondre à votre demande. Les plans et images présentés sur notre site sont la propriété d’HEXAOM et ne peuvent pas être reproduits sans son accord. Pour retrouver notre politique de protection des données personnelles et exercer vos droits conformément à la « loi informatique et liberté » cliquez-ici.