Maison neuve à
Saint-Jean-de-Daye (50620) Référence : JS2485478_1

Prix du projet : Maison avec Terrain

prix 193 000 €

  • 7 pièces
  • 5 chambres
  • Surface maison 102 m2

Maison T7 (102 m²) à vendre à Saint-Jean-de-Daye
IDÉALEMENT SITUÉE - MAISON 7 PIÈCES NEUVE
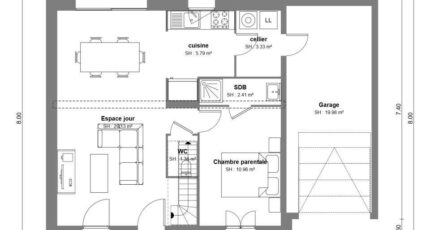
Idéalement située dans Saint-Jean-de-Daye (50620), nous sommes ravis de vous proposer cette maison de 7 pièces de 102 m² et de 438 m² de terrain. Son intérieur est composé de cinq chambres, d'une cuisine et de deux salles de bains.
Il s'agit d'une maison de 2 niveaux. Elle est neuve.
La maison est située dans un secteur convoité. Le Collège du Marais et l'École Primaire rpi Viridovix sont implantés à moins de 10 minutes à pied. Côté transports en commun, il y a les gares Lison et Pont-Hébert à moins de 10 minutes en voiture. Les nationales N174 et N13 sont accessibles à moins de 10 km. On trouve un tennis, une bibliothèque, une supérette, une boucherie-charcuterie et un bureau de poste dans les environs.
Elle est à vendre pour la somme de 193 000 €.
N'hésitez pas à prendre contact avec notre agence (HUE Emilie : 06-29-81-46-66) pour tout renseignement sur la maison, sur les démarches à suivre ou sur les modalités de vente. Maisons France Confort Bayeux vous accompagne dans tous vos projets immobiliers et dans toutes vos démarches.

Annonce proposée par un Agent Commercial Partenaire.

Mentions légales

Terrain proposé par un partenaire foncier selon disponibilités et autorisation de publicité au prix de 23 000 €. Hors droit d'enregistrement et frais de notaire. Terrain + Maison proposés au prix de 193 000 € (Hors branchements et raccordements, papiers peints, peintures, revêtement de sol dans les chambres. Tarif modifiable sans préavis). Etiquette énergie : A. Différents modèles disponibles pour ce terrain. Assurances et garanties du constructeur (RC professionnelle, décennale, dommage ouvrage, garantie de remboursement de l'acompte, livraison à prix et délai convenu) : https://www.maisons-france-confort.fr/mentions-legales/. HEXAOM Services est enregistré auprès de l'ORIAS en tant que Courtier en financement, Niveau 1, sous le numéro 14001345.

Contactez l'agence de Bayeux

02 31 51 20 91

    * Champs obligatoires

    Vos informations sont traitées par HEXAOM et transmises à un conseiller commercial qui vous contactera afin de répondre à votre demande. Les plans et images présentés sur notre site sont la propriété d’HEXAOM et ne peuvent pas être reproduits sans son accord. Pour retrouver notre politique de protection des données personnelles et exercer vos droits conformément à la « loi informatique et liberté » cliquez-ici.