Maison neuve à
Saint-Clair-sur-l'Elle
(50680) Référence :
JS2485214_1
Prix du projet : Maison avec Terrain
prix 200 000 €
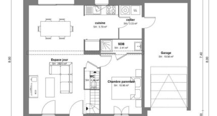
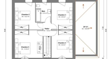
- 7 pièces
- 5 chambres
- Surface maison 102 m2
VENTE d'une maison de 7 pièces (102 m²) à Saint-Clair-sur-l'Elle
IDÉALEMENT SITUÉE - MAISON 7 PIÈCES NEUVE
À vendre : nous vous présentons cette maison de 7 pièces de 102 m² idéalement située dans Saint-Clair-sur-l'Elle (50680). Son intérieur comporte cinq chambres, une cuisine et deux salles de bains.
Le terrain du bien s'étend sur 384 m².
Cette maison compte 2 niveaux. Elle est neuve.
Cette maison se situe dans un quartier attractif. L'École Primaire Coccin'elle et le Collège Jean Gremillon sont implantés à moins de 10 minutes à pied, tout comme une crèche. Côté transports en commun, il y a les gares Lison, Pont-Hébert et Saint-Lô à moins de 10 minutes en voiture. La nationale N174 est accessible à 8 km. On trouve deux commerces, une boucherie-charcuterie, un bureau de poste et une supérette dans les environs.
Elle est à vendre pour la somme de 200 000 €.
Contactez Emilie HUE (06-29-81-46-66) pour toute information sur la maison.
Annonce proposée par un Agent Commercial Partenaire.
Mentions légales
Terrain proposé par un partenaire foncier selon disponibilités et autorisation de publicité au prix de 30 000 €. Hors droit d'enregistrement et frais de notaire. Terrain + Maison proposés au prix de 200 000 € (Hors branchements et raccordements, papiers peints, peintures, revêtement de sol dans les chambres. Tarif modifiable sans préavis). Etiquette énergie : A. Différents modèles disponibles pour ce terrain. Assurances et garanties du constructeur (RC professionnelle, décennale, dommage ouvrage, garantie de remboursement de l'acompte, livraison à prix et délai convenu) : https://www.maisons-france-confort.fr/mentions-legales/. HEXAOM Services est enregistré auprès de l'ORIAS en tant que Courtier en financement, Niveau 1, sous le numéro 14001345.Agence Maisons France Confort de Bayeux (14400)
- Téléphone :
- 02 31 51 20 91
- Adressse :
- 2, rue Saint Loup
14400 Bayeux, France
