Maison neuve à
La Haye-Malherbe
(27400) Référence :
MB2451669_2
Prix du projet : Maison avec Terrain
prix 256 789 €
- 6 pièces
- 4 chambres
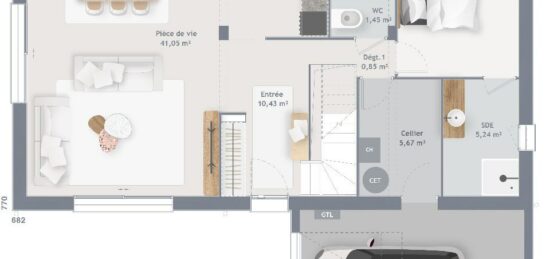
- Surface maison 89 m2
VENTE : maison de 6 pièces (89 m²) à La Haye-Malherbe
EMPLACEMENT PRIVILÉGIÉ - MAISON 6 PIÈCES NEUVE
En vente à 23 km de Rouen, votre agence Maisons France Confort Vernon est heureuse de vous présenter cette maison de 6 pièces de 89 m² et de 1 300 m² de terrain bénéficiant d'un emplacement d'exception dans La Haye-Malherbe (27400).
Cette maison compte 2 niveaux. Elle propose quatre chambres, une cuisine et une salle de bains. Cette maison est neuve.
Ce bien se situe dans un quartier convoité. Il y a l'École Primaire le Village à moins de 10 minutes à pied. Niveau transports, on trouve la gare Elbeuf-Saint-Aubin à moins de 10 minutes en voiture. Il y a un commerce, une boucherie-charcuterie, un bureau de poste et une épicerie à quelques minutes du logement.
Son prix de vente est de 256 789 €.
N'hésitez pas à prendre contact avec notre constructeur (Mickael BESNARD : 06-15-50-56-87) pour toute information sur la maison, sur les modalités de vente ou sur les démarches à suivre.
Annonce proposée par un Agent Commercial Partenaire.
Mentions légales
Terrain proposé par un partenaire foncier selon disponibilités et autorisation de publicité au prix de 85 000 €. Hors droit d'enregistrement et frais de notaire. Terrain + Maison proposés au prix de 256 789 € (Hors branchements et raccordements, papiers peints, peintures, revêtement de sol dans les chambres. Tarif modifiable sans préavis). Etiquette énergie : A. Différents modèles disponibles pour ce terrain. Assurances et garanties du constructeur (RC professionnelle, décennale, dommage ouvrage, garantie de remboursement de l'acompte, livraison à prix et délai convenu) : https://www.maisons-france-confort.fr/mentions-legales/. HEXAOM Services est enregistré auprès de l'ORIAS en tant que Courtier en financement, Niveau 1, sous le numéro 14001345.Agence Maisons France Confort de Vernon (27200)
- Téléphone :
- 02 32 51 45 05
- Adressse :
- 38 rue Carnot
27200 Vernon, France
