Maison neuve à
Missy
(14210) Référence :
JS2484968_1
Prix du projet : Maison avec Terrain
prix 226 000 €
- 7 pièces
- 5 chambres
- Surface maison 102 m2
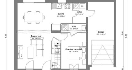
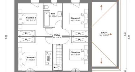
VENTE : maison de 7 pièces (102 m²) à Missy
IDÉALEMENT SITUÉE - MAISON 7 PIÈCES NEUVE
À vendre : à quelques kilomètres de Caen, nous sommes ravis de vous proposer, idéalement située dans Missy (14210), cette maison de 7 pièces de 102 m² et de 375 m² de terrain. Son intérieur dispose de cinq chambres, d'une cuisine et de deux salles de bains.
C'est une maison de 2 niveaux. Elle est neuve.
Cette maison est située dans un quartier prisé. On trouve des écoles de tous types à moins de 10 minutes en voiture, tout comme trois structures d'accueil pour la petite enfance à moins de 10 minutes à pied. Niveau transports, il y a la gare Bretteville-Norrey à moins de 10 minutes en voiture. L'autoroute A84 et les nationales N13 et N814 sont accessibles à moins de 10 km. On trouve des tennis, des bibliothèques, un bassin de natation, un bowling, des commerces, quatre supérettes, des boucheries-charcuteries, quatre bureaux de poste et des épiceries à quelques minutes du bien. Enfin, le marché Rue du Stade anime les environs tous les dimanches matin.
Elle est proposée à l'achat pour 226 000 €.
Contactez Emilie HUE (tél : 06-29-81-46-66) pour toute information sur la maison ou sur les modalités de vente.
Annonce proposée par un Agent Commercial Partenaire.
Mentions légales
Terrain proposé par un partenaire foncier selon disponibilités et autorisation de publicité au prix de 56 000 €. Hors droit d'enregistrement et frais de notaire. Terrain + Maison proposés au prix de 226 000 € (Hors branchements et raccordements, papiers peints, peintures, revêtement de sol dans les chambres. Tarif modifiable sans préavis). Etiquette énergie : A. Différents modèles disponibles pour ce terrain. Assurances et garanties du constructeur (RC professionnelle, décennale, dommage ouvrage, garantie de remboursement de l'acompte, livraison à prix et délai convenu) : https://www.maisons-france-confort.fr/mentions-legales/. HEXAOM Services est enregistré auprès de l'ORIAS en tant que Courtier en financement, Niveau 1, sous le numéro 14001345.Agence Maisons France Confort de Bayeux (14400)
- Téléphone :
- 02 31 51 20 91
- Adressse :
- 2, rue Saint Loup
14400 Bayeux, France
