Maison neuve à
Noyers-Bocage (14210) Référence : JS2484996_1

Prix du projet : Maison avec Terrain

prix 240 600 €

  • 7 pièces
  • 5 chambres
  • Surface maison 102 m2

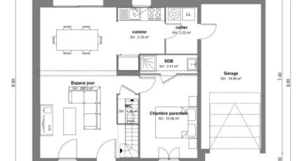
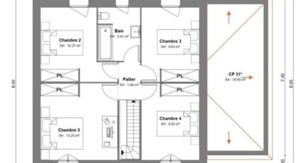
VENTE : maison F7 (102 m²) à Noyers-Bocage
IDÉALEMENT SITUÉE - MAISON 7 PIÈCES NEUVE
En vente à deux pas de Caen, Maisons France Confort Bayeux vous présente cette maison de 7 pièces de 102 m² et de 434 m² de terrain idéalement située dans Noyers-Bocage (14210). Elle se divise en cinq chambres, une cuisine et deux salles de bains.
C'est une maison de 2 niveaux. Elle est neuve.
La maison se situe dans un quartier attractif. Il y a l'École Primaire Noyers Bocage à moins de 10 minutes à pied. Niveau transports en commun, on trouve la gare Bretteville-Norrey à moins de 10 minutes en voiture. On trouve un accès à l'autoroute A84 à 1 km. Il y a une bibliothèque et deux boucheries-charcuteries à proximité.
Elle est à vendre pour la somme de 240 600 €.
Contactez notre agence (HUE Emilie : 06-29-81-46-66) pour obtenir de plus amples informations sur la maison ou sur les démarches à suivre. Faites de vos projets immobiliers une réalité avec Maisons France Confort Bayeux.

Annonce proposée par un Agent Commercial Partenaire.

Mentions légales

Terrain proposé par un partenaire foncier selon disponibilités et autorisation de publicité au prix de 70 600 €. Hors droit d'enregistrement et frais de notaire. Terrain + Maison proposés au prix de 240 600 € (Hors branchements et raccordements, papiers peints, peintures, revêtement de sol dans les chambres. Tarif modifiable sans préavis). Etiquette énergie : A. Différents modèles disponibles pour ce terrain. Assurances et garanties du constructeur (RC professionnelle, décennale, dommage ouvrage, garantie de remboursement de l'acompte, livraison à prix et délai convenu) : https://www.maisons-france-confort.fr/mentions-legales/. HEXAOM Services est enregistré auprès de l'ORIAS en tant que Courtier en financement, Niveau 1, sous le numéro 14001345.

Contactez l'agence de Bayeux

02 31 51 20 91

    * Champs obligatoires

    Vos informations sont traitées par HEXAOM et transmises à un conseiller commercial qui vous contactera afin de répondre à votre demande. Les plans et images présentés sur notre site sont la propriété d’HEXAOM et ne peuvent pas être reproduits sans son accord. Pour retrouver notre politique de protection des données personnelles et exercer vos droits conformément à la « loi informatique et liberté » cliquez-ici.