Maison neuve à
Noyers-Bocage
(14210) Référence :
JS2484986_1
Prix du projet : Maison avec Terrain
prix 236 400 €
- 7 pièces
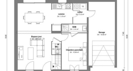
- 5 chambres
- Surface maison 102 m2
Noyers-Bocage : maison F7 (102 m²) en vente
IDÉALEMENT SITUÉE - MAISON 7 PIÈCES NEUVE
À 17 km de Caen, à vendre idéalement située dans Noyers-Bocage (14210), nous sommes heureux de vous présenter cette maison de 7 pièces de 102 m² et de 390 m² de terrain. Son intérieur dispose de cinq chambres, d'une cuisine et de deux salles de bains.
C'est une maison de 2 niveaux. Elle est neuve.
Cette maison se trouve dans un quartier prisé. L'École Primaire Noyers Bocage est implantée à moins de 10 minutes à pied. Côté transports, il y a la gare Bretteville-Norrey à moins de 10 minutes en voiture. On trouve un accès à l'autoroute A84 à 1 km. On trouve une bibliothèque et deux boucheries-charcuteries dans les environs.
Elle est proposée à l'achat pour 236 400 €.
Prenez contact avec notre agence (Emilie HUE : 06-29-81-46-66) pour toute information sur la maison, sur les démarches à suivre ou sur les modalités de vente. Maisons France Confort Bayeux est là pour vous accompagner dans tous vos projets immobiliers.
Annonce proposée par un Agent Commercial Partenaire.
Mentions légales
Terrain proposé par un partenaire foncier selon disponibilités et autorisation de publicité au prix de 66 400 €. Hors droit d'enregistrement et frais de notaire. Terrain + Maison proposés au prix de 236 400 € (Hors branchements et raccordements, papiers peints, peintures, revêtement de sol dans les chambres. Tarif modifiable sans préavis). Etiquette énergie : A. Différents modèles disponibles pour ce terrain. Assurances et garanties du constructeur (RC professionnelle, décennale, dommage ouvrage, garantie de remboursement de l'acompte, livraison à prix et délai convenu) : https://www.maisons-france-confort.fr/mentions-legales/. HEXAOM Services est enregistré auprès de l'ORIAS en tant que Courtier en financement, Niveau 1, sous le numéro 14001345.Agence Maisons France Confort de Bayeux (14400)
- Téléphone :
- 02 31 51 20 91
- Adressse :
- 2, rue Saint Loup
14400 Bayeux, France
