Maison neuve à
Nanteuil-lès-Meaux
(77100) Référence :
CY2430988_1
Prix du projet : Maison avec Terrain
prix 289 000 €
- 5 pièces
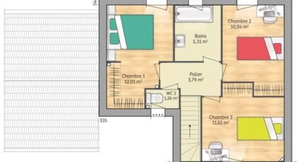
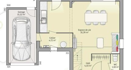
- 3 chambres
- Surface maison 90 m2
VENTE d'une maison T5 (90 m²) à Nanteuil-lès-Meaux
MAISON 5 PIÈCES NEUVE - PROCHE D'AULNAY-SOUS-BOIS
À deux pas de la gare de Meaux (Paris à 25 min avec le Transilien P), notre agence Maisons France Confort Magny-le-Hongre est ravie de vous proposer cette maison de 5 pièces de 90 m² à Nanteuil-lès-Meaux (77100).
Cette maison comporte 2 niveaux. Son intérieur est composé de trois chambres, d'une cuisine et d'une salle de bains. Cette maison est neuve.
Le terrain du bien est de 450 m².
Il y a des écoles maternelles et élémentaires à moins de 10 minutes à pied. Côté transports en commun, on trouve huit gares à moins de 10 minutes en voiture. On trouve une bibliothèque, trois commerces, deux boulangeries, une épicerie et un bureau de poste à proximité.
Elle est proposée à l'achat pour 289 000 €.
Prenez contact avec Cedric YAHIAOUI (tél : 06-66-57-00-63) pour obtenir de plus amples renseignements sur cette maison. Concrétisez vos projets immobiliers avec Maisons France Confort Magny-le-Hongre.
Annonce proposée par un Agent Commercial Partenaire.
Mentions légales
Terrain proposé par un partenaire foncier selon disponibilités et autorisation de publicité au prix de 129 000 €. Hors droit d'enregistrement et frais de notaire. Terrain + Maison proposés au prix de 289 000 € (Hors branchements et raccordements, papiers peints, peintures, revêtement de sol dans les chambres. Tarif modifiable sans préavis). Etiquette énergie : A. Différents modèles disponibles pour ce terrain. Assurances et garanties du constructeur (RC professionnelle, décennale, dommage ouvrage, garantie de remboursement de l'acompte, livraison à prix et délai convenu) : https://www.maisons-france-confort.fr/mentions-legales/. HEXAOM Services est enregistré auprès de l'ORIAS en tant que Courtier en financement, Niveau 1, sous le numéro 14001345.Agence Maisons France Confort de Magny-le-Hongre (77700)
- Téléphone :
- 01 84 80 92 96
- Adressse :
- 11 rue de Courtalin
77700 Magny-le-Hongre, France
