Maison neuve à
Nanteuil-lès-Meaux
(77100) Référence :
CY2434578_5
Prix du projet : Maison avec Terrain
prix 305 000 €
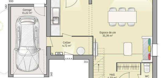
- 5 pièces
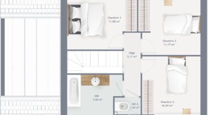
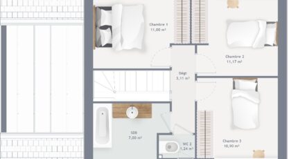
- 3 chambres
- Surface maison 90 m2
VENTE : maison T5 (90 m²) à Nanteuil-lès-Meaux
PROCHE D'AULNAY-SOUS-BOIS - MAISON 5 PIÈCES NEUVE
À vendre : à côté de la gare de Meaux (Paris à 25 min par le Transilien P), Maisons France Confort Magny-le-Hongre vous propose à Nanteuil-lès-Meaux (77100), cette maison de 5 pièces de 90 m².
Il s'agit d'une maison de 2 niveaux. Son intérieur inclut trois chambres, une cuisine et une salle de bains. Cette maison est neuve.
Le terrain de la propriété est de 544 m².
Des écoles maternelles et élémentaires sont implantées à moins de 10 minutes à pied. Niveau transports, il y a huit gares à moins de 10 minutes en voiture. On trouve une bibliothèque, trois commerces, deux boulangeries, une épicerie et un bureau de poste à quelques minutes de la maison.
Son prix de vente est de 305 000 €.
N'hésitez pas à prendre contact avec notre agence (YAHIAOUI Cedric : 06-66-57-00-63) pour tout renseignement sur la maison.
Annonce proposée par un Agent Commercial Partenaire.
Mentions légales
Terrain proposé par un partenaire foncier selon disponibilités et autorisation de publicité au prix de 122 000 €. Hors droit d'enregistrement et frais de notaire. Terrain + Maison proposés au prix de 305 000 € (Hors branchements et raccordements, papiers peints, peintures, revêtement de sol dans les chambres. Tarif modifiable sans préavis). Etiquette énergie : A. Différents modèles disponibles pour ce terrain. Assurances et garanties du constructeur (RC professionnelle, décennale, dommage ouvrage, garantie de remboursement de l'acompte, livraison à prix et délai convenu) : https://www.maisons-france-confort.fr/mentions-legales/. HEXAOM Services est enregistré auprès de l'ORIAS en tant que Courtier en financement, Niveau 1, sous le numéro 14001345.Agence Maisons France Confort de Magny-le-Hongre (77700)
- Téléphone :
- 01 84 80 92 96
- Adressse :
- 11 rue de Courtalin
77700 Magny-le-Hongre, France
