Maison neuve à
Dammartin-en-Serve (78111) Référence : ED2412390_1

Prix du projet : Maison avec Terrain

prix 438 145 €

  • 6 pièces
  • 4 chambres
  • Surface maison 150 m2

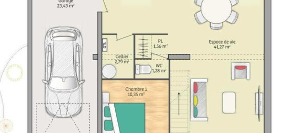
A construire sur la commune de Dammartin-en-Serve, une magnifique maison avec vide sur séjour et comble aménageable pour une superficie de 150 m².

Dans un secteur recherché, nous vous proposons ce projet maison 6 pièces de 150 m² sur un terrain de 811 m² dans un quartier calme situé sur la commune de Dammartin-en-Serve (78111).
Cette belle maison est composée de quatre chambres, d'une cuisine et de deux salles de bains.

L'École Primaire G. Bruhat est implantée dans la commune.
Deux gares (Bréval et Rosny-sur-Seine) sont à moins de 10 minutes en voiture.

Ce projet maison + terrain est proposée à l'achat pour 438 145 €.

Contactez notre agence Maisons Balency Gravigny, pour plus de renseignements.
Notre conseillère commerciale Élodie DUPRÉ (07-43-61-26-52) sera ravie de vous répondre.

Donnez vie à vos projets immobiliers avec Maisons Balency Gravigny.

Annonce proposée par un Agent Commercial Partenaire.

Mentions légales

Terrain proposé par un partenaire foncier selon disponibilités et autorisation de publicité au prix de 109 900 €. Hors droit d'enregistrement et frais de notaire. Terrain + Maison proposés au prix de 438 145 € (Hors branchements et raccordements, papiers peints, peintures, revêtement de sol dans les chambres. Tarif modifiable sans préavis). Etiquette énergie : A. Différents modèles disponibles pour ce terrain. Assurances et garanties du constructeur (RC professionnelle, décennale, dommage ouvrage, garantie de remboursement de l'acompte, livraison à prix et délai convenu) : https://www.maisons-balency.fr/informations-legales/. HEXAOM Services est enregistré auprès de l'ORIAS en tant que Courtier en financement, Niveau 1, sous le numéro 14001345.

Contactez l'agence de Gravigny

02 32 51 49 29

    * Champs obligatoires

    Vos informations sont traitées par HEXAOM et transmises à un conseiller commercial qui vous contactera afin de répondre à votre demande. Les plans et images présentés sur notre site sont la propriété d’HEXAOM et ne peuvent pas être reproduits sans son accord. Pour retrouver notre politique de protection des données personnelles et exercer vos droits conformément à la « loi informatique et liberté » cliquez-ici.