Maison neuve à
Aimargues
(30470) Référence :
LR2382007_2
Prix du projet : Maison avec Terrain
prix 384 600 €
- 5 pièces
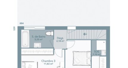
- 3 chambres
- Surface maison 92 m2
VENTE : maison T5 (92 m²) à Aimargues
IDÉALEMENT SITUÉE - MAISON 5 PIÈCES NEUVE
À vendre : à 10 minutes de Gallargues-Le-Montueux, Mus, 15 minutes d'Aigues-mortes, 25 minutes des portes de Nîmes, nous sommes heureux de vous présenter cette maison de 5 pièces de 92 m² sur 356 m² de terrain idéalement située dans Aimargues (30470). Elle est composée de trois chambres, d'une cuisine et de trois salles de bains.
C'est une maison de 2 niveaux. Elle est neuve.
Cette maison se trouve dans un quartier prisé. Des écoles maternelles et élémentaires y sont implantées. Niveau transports en commun, il y a huit gares à moins de 10 minutes en voiture. On trouve un accès à l'autoroute A9 à 5 km. On trouve une bibliothèque dans les environs.
Elle est proposée à l'achat pour 384 600 €.
Contactez notre agence (Lionel ROMERA : 06-30-39-77-79) pour obtenir de plus amples informations sur le bien, sur les démarches à suivre ou sur les modalités de vente.
Annonce proposée par un Agent Commercial Partenaire.
Mentions légales
Terrain proposé par un partenaire foncier selon disponibilités et autorisation de publicité au prix de 165 000 €. Hors droit d'enregistrement et frais de notaire. Terrain + Maison proposés au prix de 384 600 € (Hors branchements et raccordements, papiers peints, peintures, revêtement de sol dans les chambres. Tarif modifiable sans préavis). Etiquette énergie : A. Différents modèles disponibles pour ce terrain. Assurances et garanties du constructeur (RC professionnelle, décennale, dommage ouvrage, garantie de remboursement de l'acompte, livraison à prix et délai convenu) : https://www.maisons-france-confort.fr/mentions-legales/. HEXAOM Services est enregistré auprès de l'ORIAS en tant que Courtier en financement, Niveau 1, sous le numéro 14001345.Agence Maisons France Confort de Montpellier (34000)
- Téléphone :
- 04 67 64 85 11
- Adressse :
- 48, impasse Louis Ferdinand Herold
34000 Montpellier, France
