Maison neuve à
Asfeld (08190) Référence : NG2295559_4

Prix du projet : Maison avec Terrain

prix 264 000 €

  • 5 pièces
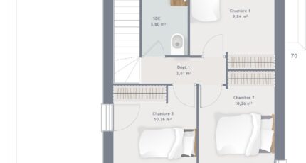
  • 3 chambres
  • Surface maison 90 m2

Maison neuve de 90m2 avec 3 chambres à vendre à Asfeld, construction avec des matériaux de qualité (ossature en brique) répondant aux dernières normes RE2020.
Le modèle présenté est Eco Concept 90 R+1 GI. Des lignes très design pour cette maison qui se compose de 3 chambres avec placards, un espace de vie ouvert sur la cuisine, une salle de bain, deux WC (dont un au rez-de-chaussée), un cellier et un garage.
La construction traditionnelle aux normes RE2020 de la maison est réalisée en brique et l'ensemble des matériaux utilisés sont de qualité afin de vous assurer un investissement durable.
Terrain de 1350m2 à Asfeld parfaitement plat et idéalement situé au calme et proche de toutes les commodités.
Asfeld est une commune recherchée pour son axe direct, ses commodités (écoles jusqu'au collège, commerces, nombreuses associations sportives et culturelles pour la famille) la commune est proche de Guignicourt, Brienne Sur Aisne, Poilcourt Sydney, Avaux, Vieux Lès Asfeld, Houldicourt, Roizy et Reims.
Pour plus de renseignements vous pouvez me contacter , Nicolas GUILLAUME de l'agence Maisons France Confort de Cormontreuil au 07.77.79.23.59

Mentions légales

Terrain proposé par un partenaire foncier selon disponibilités et autorisation de publicité au prix de 53 000 €. Hors droit d'enregistrement et frais de notaire. Maison proposée, avec un contrat de construction de maison individuelle, dans le cadre de la loi du 19/12/1990, au prix de 211 000 € (Hors branchements et raccordements, papiers peints, peintures, revêtement de sol dans les chambres, qui sont chiffrés dans les travaux qui restent à charge du client. Tarif modifiable sans préavis). Étiquette énergie : A. Différents modèles disponibles pour ce terrain. Assurances et garanties du constructeur comprises (RC professionnelle, décennale, dommage ouvrage).

Contactez l'agence de Cormontreuil

03 26 46 40 50

    * Champs obligatoires

    Vos informations sont traitées par HEXAOM et transmises à un conseiller commercial qui vous contactera afin de répondre à votre demande. Les plans et images présentés sur notre site sont la propriété d’HEXAOM et ne peuvent pas être reproduits sans son accord. Pour retrouver notre politique de protection des données personnelles et exercer vos droits conformément à la « loi informatique et liberté » cliquez-ici.