Maison neuve à
Carentoir (56910) Référence : GC2304487_1

Prix du projet : Maison avec Terrain

prix 233 900 €

  • 5 pièces
  • 3 chambres
  • Surface maison 90 m2

VENTE : maison T5 (90 m²) à Carentoir
MAISON 5 PIÈCES NEUVE
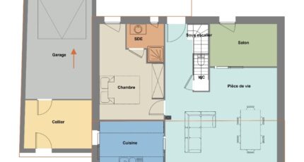
À vendre à 44 km de la côte atlantique, à Carentoir (56910), Maisons de l'Avenir Vannes vous propose cette maison de 5 pièces de 90 m². Son intérieur propose trois chambres, une cuisine et deux salles de bains.
Le terrain de cette maison est de 800 m².
C'est une maison de 2 niveaux. Elle est neuve.
L'École Primaire Publique Yann Arthus Bertrand et l'École Primaire Privée Saint Stanislas sont implantées à moins de 10 minutes à pied, tout comme une structure d'accueil pour la petite enfance. La nationale N24 est accessible à 13 km. On trouve un tennis, deux commerces, deux boulangeries, une boucherie-charcuterie et un bureau de poste à proximité du bien.
Elle est à vendre pour la somme de 233 900 €.
Prenez contact avec Germain CHARUEL (tél : 02-97-68-32-50) pour toute question sur la maison, sur les démarches à suivre ou sur les modalités de vente. Maisons de l'Avenir Vannes est là pour vous accompagner dans tous vos projets immobiliers.

Mentions légales

Maisons de l’Avenir, constructeur de maisons individuelles, propose en collaboration avec ses partenaires fonciers, une sélection de terrains constructibles, selon disponibilité, pour la construction de maisons neuves définies par le constructeur, avec un contrat de construction de maison individuelle, dans le cadre de la loi du 19/12/1990. Prix net, hors frais notariés, d'enregistrement et de publicité foncière

Terrain proposé au prix de : 34 000 €

Maison proposée au prix de : 199 900 €

Etiquette énergie : A. Assurances et garanties du constructeur (RC professionnelle, décennale, dommage ouvrage, Garantie de livraison à prix et délai convenu). https://www.maisonsdelavenir.com/mentions-legales/

Contactez l'agence de Vannes

02 97 68 32 50

    * Champs obligatoires

    Vos informations sont traitées par HEXAOM et transmises à un conseiller commercial qui vous contactera afin de répondre à votre demande. Les plans et images présentés sur notre site sont la propriété d’HEXAOM et ne peuvent pas être reproduits sans son accord. Pour retrouver notre politique de protection des données personnelles et exercer vos droits conformément à la « loi informatique et liberté » cliquez-ici.