Maison neuve à
Champmotteux
(91150) Référence :
AD2352211_2
Prix du projet : Maison avec Terrain
prix 252 986 €
- 5 pièces
- 3 chambres
- Surface maison 90 m2
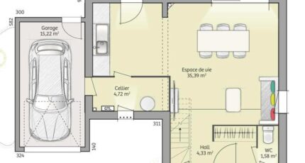
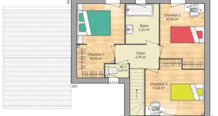
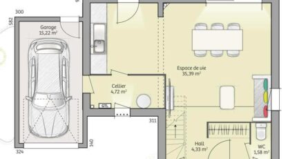
Champmotteux : maison de 5 pièces (90 m²) à vendre
MAISON 5 PIÈCES NEUVE
À deux pas de Corbeil-Essonnes, à vendre à Champmotteux (91150), votre agence Maisons France Confort Nemours est heureuse de vous présenter cette maison de 5 pièces de 90 m² et de 392 m² de terrain.
Cette maison possède 2 niveaux. Son intérieur est composé de trois chambres, d'une cuisine et d'une salle de bains. Cette maison est neuve.
Plusieurs établissements scolaires (maternelle, élémentaire, primaire et collège) sont implantés à moins de 10 minutes en voiture. Niveau transports en commun, on trouve la ligne de RER D (Boigneville) ainsi que quatre gares dans les environs. Il y a trois tennis, une bibliothèque, un bassin de natation, des commerces, des boulangeries, des supermarchés, des boucheries-charcuteries et des épiceries à quelques minutes à peine. Le marché Centre-Ville anime les environs tous les mercredis matin.
Son prix de vente est de 252 986 €.
N'hésitez pas à prendre contact avec Anne DELOHEN (tél : 06-30-93-26-67) pour toute question sur cette maison, sur les démarches à suivre ou sur les modalités de vente.
Annonce proposée par un Agent Commercial Partenaire.
Mentions légales
Terrain proposé par un partenaire foncier selon disponibilités et autorisation de publicité au prix de 77 000 €. Hors droit d'enregistrement et frais de notaire. Terrain + Maison proposés au prix de 252 986 € (Hors branchements et raccordements, papiers peints, peintures, revêtement de sol dans les chambres. Tarif modifiable sans préavis). Etiquette énergie : A. Différents modèles disponibles pour ce terrain. Assurances et garanties du constructeur (RC professionnelle, décennale, dommage ouvrage, garantie de remboursement de l'acompte, livraison à prix et délai convenu) : https://www.maisons-france-confort.fr/mentions-legales/. HEXAOM Services est enregistré auprès de l'ORIAS en tant que Courtier en financement, Niveau 1, sous le numéro 14001345.Agence Maisons France Confort de Nemours (77140)
- Téléphone :
- 01 64 28 58 32
- Adressse :
- 16 Avenue Carnot
77140 Nemours, France
