Maison neuve à
Flaujac-Poujols (46090) Référence : EG2370626_2

Prix du projet : Maison avec Terrain

prix 230 000 €

  • 5 pièces
  • 4 chambres
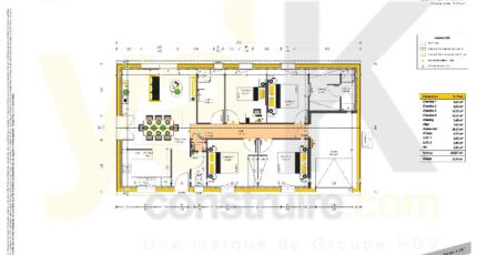
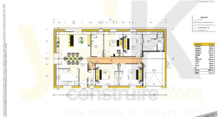
  • Surface maison 100 m2

Très jolie maison de 100 m² avec garage - Classe énergétique A - Flaujac-Poujols

À découvrir à Flaujac-Poujols : très jolie maison de 100 m², très lumineuse, offrant une belle vue dégagée.

Elle se compose de 3 chambres et une suite, d'un garage, et bénéficie d'une excellente performance énergétique (classée A), garantissant confort et économies d'énergie.

💰 Prix : 250 000 € (hors frais annexes)

📞 Contact : M. Gohebel Erwan
☎️ O7 64 15 17 37

Mentions légales

Terrain proposé par un partenaire foncier selon disponibilité dans le cadre d’un projet de construction avec Alpha Constructions. Les descriptions, photographies, surfaces et prix illustrant l’annonce sont fournies à titre indicatif et ne sont pas contractuels. Non soumis au DPE. Différents modèles disponibles.

Contactez l'agence de Cahors

05 65 23 62 70

    * Champs obligatoires

    Vos informations sont traitées par HEXAOM et transmises à un conseiller commercial qui vous contactera afin de répondre à votre demande. Les plans et images présentés sur notre site sont la propriété d’HEXAOM et ne peuvent pas être reproduits sans son accord. Pour retrouver notre politique de protection des données personnelles et exercer vos droits conformément à la « loi informatique et liberté » cliquez-ici.