Maison neuve à
Fontvieille (13990) Référence : HL2235581_1

Prix du projet : Maison avec Terrain

prix 549 000 €

  • 6 pièces
  • 4 chambres
  • Surface maison 130 m2

Maison France Confort et ses partenaires fonciers vous proposent, sur la commune de Fontvieille, à seulement 5 minutes du centre du village et de ses nombreux commerces, une parcelle à bâtir de 600 m². Ce terrain, idéalement situé dans un lotissement sécurisé de 7 lots.

Portail électrique,
Clôture périphérique,
Aménagement paysager,
Chemin d'accès en béton désactivé (ou matériau équivalent).

Cette parcelle bénéficie d'une excellente situation, proche des axes routiers, avec un accès rapide aux communes de Saint-Rémy-de-Provence, Maussane, Arles, Avignon et Salon-de-Provence.

Nous proposons également d'autres terrains dans les communes avoisinantes.

Exemple :
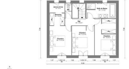
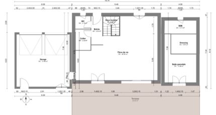
Villa en demi-niveaux comprenant :
4 chambres, dont une suite parentale
Une pièce de vie lumineuse de 45 m² avec cuisine ouverte donnant sur votre futur jardin,
De grandes ouvertures pour une clarté optimale,
Un accès à un garage de 30 m² pouvant accueillir un cellier, voiture, motos, etc.

Prix : 549 OOO € (hors frais de notaire et taxes).


Nos équipes commerciales, dessinateurs et bureau d'études vous accompagnent à chaque étape de votre projet.
Personnalisation des aménagements intérieurs possible selon vos envies.

Pour tout renseignement, contactez notre agence de Salon-de-Provence.
Nous serons ravis de vous accompagner dans la réalisation de votre futur projet immobilier.
Tél: 06 25 52 O2 322

Mentions légales

Terrain proposé par un partenaire foncier selon disponibilités et autorisation de publicité au prix de 265 000 €. Hors droit d'enregistrement et frais de notaire. Maison proposée, avec un contrat de construction de maison individuelle, dans le cadre de la loi du 19/12/1990, au prix de 284 000 € (Hors branchements et raccordements, papiers peints, peintures, revêtement de sol dans les chambres, qui sont chiffrés dans les travaux qui restent à charge du client. Tarif modifiable sans préavis). Étiquette énergie : A. Différents modèles disponibles pour ce terrain. Assurances et garanties du constructeur comprises (RC professionnelle, décennale, dommage ouvrage).

Contactez l'agence de Salon-de-Provence

04 90 56 69 36

    * Champs obligatoires

    Vos informations sont traitées par HEXAOM et transmises à un conseiller commercial qui vous contactera afin de répondre à votre demande. Les plans et images présentés sur notre site sont la propriété d’HEXAOM et ne peuvent pas être reproduits sans son accord. Pour retrouver notre politique de protection des données personnelles et exercer vos droits conformément à la « loi informatique et liberté » cliquez-ici.