Maison neuve à
Hénonville
(60119) Référence :
XDSS2370943_4
Prix du projet : Maison avec Terrain
prix 335 000 €
- 5 pièces
- 3 chambres
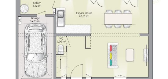
- Surface maison 95 m2
A 25 minutes de la Commune de CERGY nous vous proposons un beau projet de construction sur HENONVILLE, une charmante commune dans l'Oise.
Nous vous proposons de devenir propriétaire d'une maison individuelle :
-Plans personnalisés .
-Prête à décorer ( carrelage inclus et salle d'eau équipée )
-Sécurisée par notre partenaire NEXHOME .
-Intelligente et fonctionnelle ( Gestion depuis votre smartphone de vos volets , chauffages et luminaires).
Projet située sur un terrain de 625 m² ,plat, en retrait de rue , au calme, borné et viabilisé.
Pour plus de renseignements , contactez moi au 06/16/27/53/27
XAVIER DOS SANTOS.
Mentions légales
Terrain proposé par un partenaire foncier selon disponibilités et autorisation de publicité au prix de 118 000 €. Hors droit d'enregistrement et frais de notaire. Terrain + Maison proposés au prix de 335 000 € (Hors branchements et raccordements, papiers peints, peintures, revêtement de sol dans les chambres. Tarif modifiable sans préavis). Etiquette énergie : A. Différents modèles disponibles pour ce terrain. Assurances et garanties du constructeur (RC professionnelle, décennale, dommage ouvrage, garantie de remboursement de l'acompte, livraison à prix et délai convenu) : https://www.maisons-france-confort.fr/mentions-legales/. HEXAOM Services est enregistré auprès de l'ORIAS en tant que Courtier en financement, Niveau 1, sous le numéro 14001345.Agence Maisons France Confort de Compiègne (60200)
- Téléphone :
- 03 44 86 81 34
- Adressse :
- 47, cours Guynemer
60200 Compiègne, France
