Maison neuve à
L'Isle-Jourdain
(32600) Référence :
CC2268610_3
Prix du projet : Maison avec Terrain
prix 341 455 €
- 4 pièces
- 3 chambres
- Surface maison 110 m2
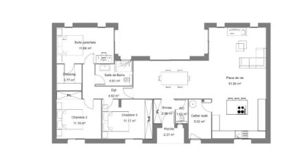
Maison de 4 pièces (110 m²) à vendre à L'Isle-Jourdain
PROCHE DE TOULOUSE - MAISON 4 PIÈCES NEUVE
À vendre : localisée à quelques kilomètres de Toulouse, Maisons France Confort Tournefeuille vous présente à L'Isle-Jourdain (32600), cette maison de 4 pièces de plain-pied de 110 m² et de 612 m² de terrain. Conçue de plain-pied, elle est composée de trois chambres, d'une cuisine et d'une salle de bains.
La maison est neuve.
Elle est proposée à l'achat pour 341 455 €.
Contactez notre agence pour tout renseignement sur cette maison ou sur les démarches à suivre.
Maisons France Confort Tournefeuille 05.61.16.47.77 est là pour vous accompagner à toutes les étapes de l'achat.
Hors frais annexes.
Annonce proposée par un Agent Commercial Partenaire.
Mentions légales
Terrain proposé par un partenaire foncier selon disponibilités et autorisation de publicité au prix de 118 000 €. Hors droit d'enregistrement et frais de notaire. Maison proposée, avec un contrat de construction de maison individuelle, dans le cadre de la loi du 19/12/1990, au prix de 223 455 € (Hors branchements et raccordements, papiers peints, peintures, revêtement de sol dans les chambres, qui sont chiffrés dans les travaux qui restent à charge du client. Tarif modifiable sans préavis). Étiquette énergie : A. Différents modèles disponibles pour ce terrain. Assurances et garanties du constructeur comprises (RC professionnelle, décennale, dommage ouvrage).Agence Maisons France Confort de Tournefeuille (31170)
- Téléphone :
- 05 61 16 47 77
- Adressse :
- 114 chemin de Larramet
31170 Tournefeuille, France
