Maison neuve à
Lorgies
(62840) Référence :
FW2296446_1
Prix du projet : Maison avec Terrain
prix 420 000 €
- 8 pièces
- 4 chambres
- Surface maison 150 m2
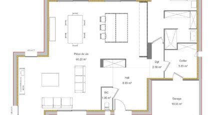
VENTE d'une maison de 8 pièces (150 m²) à Lorgies
MAISON 8 PIÈCES NEUVE - PROCHE DE LILLE
À vendre : localisée à 18 km de la frontière belge et à 19 km de Lille, à Lorgies (62840), notre agence Maisons France Confort Béthune est ravie de vous proposer cette maison de 8 pièces de 150 m².
Une architecture résolument moderne pour cette maison en R+1 avec une architecture mariant les volumes cubiques et la toiture 4 pans.
Pour l'indépendance des parents elle vous offre une suite parentale au rdc donnant directement sur le jardin, un vaste séjour avec cuisine U.S bénéficiant d'une triple orientation pour profiter du soleil toute la journée, un véritable étage avec 3 chbs une deuxième sdb et un bureau.
Des lignes épurées et des prestations de qualité pour cette réalisation Maisons France Confort qui comblera les attentes de toute la famille.
Le terrain du bien s'étend sur 535 m².
L'École Primaire le Frenelet est implantée à moins de 10 minutes à pied. Niveau transports, on trouve huit gares à moins de 10 minutes en voiture. Les nationales N47 et N41 sont accessibles à moins de 10 km. Il y a une bibliothèque, un tennis, un commerce et une épicerie dans les environs.
Son prix de vente est de 420 000 €.
N'hésitez pas à prendre contact avec notre constructeur (WALRYCK Franck : O6-80-22-74-64) pour toute question sur la maison.
Mentions légales
Terrain proposé par un partenaire foncier selon disponibilités et autorisation de publicité au prix de 98 000 €. Hors droit d'enregistrement et frais de notaire. Maison proposée, avec un contrat de construction de maison individuelle, dans le cadre de la loi du 19/12/1990, au prix de 322 000 € (Hors branchements et raccordements, papiers peints, peintures, revêtement de sol dans les chambres, qui sont chiffrés dans les travaux qui restent à charge du client. Tarif modifiable sans préavis). Étiquette énergie : A. Différents modèles disponibles pour ce terrain. Assurances et garanties du constructeur comprises (RC professionnelle, décennale, dommage ouvrage).Agence Maisons France Confort de Béthune (62400)
- Téléphone :
- 03 21 02 07 45
- Adressse :
- 112 bd Jean Moulin
62400 Béthune, France
