Maison neuve à
Montévrain
(77144) Référence :
FS2259244_1
Prix du projet : Maison avec Terrain
prix 420 000 €
- 5 pièces
- 3 chambres
- Surface maison 90 m2
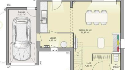
VENTE d'une maison T5 (90 m²) à Montévrain
PROCHE DE PARIS - MAISON 5 PIÈCES NEUVE
À quelques minutes du RER A (station Val d'Europe, 30 min de Paris), notre agence Maisons France Confort Magny-le-Hongre est heureuse de vous présenter cette maison de 5 pièces de 90 m² en vente à Montévrain (77144).
Il s'agit d'une maison de 2 niveaux. Son intérieur comporte trois chambres, une cuisine et une salle de bains. Cette maison est neuve.
Le terrain de la propriété est de 600 m².
Le Collège le Vieux Chêne, l'École Primaire le Verger et l'École Primaire le Puits du Gué sont implantés à moins de 10 minutes à pied, tout comme quatre structures d'accueil pour les tout-petits. Niveau transports en commun, on trouve la ligne de RER A (Chessy-Marne-La-Vallée) ainsi que sept gares à moins de 10 minutes en voiture. Il y a un bassin de natation, une bibliothèque, un tennis, des commerces, deux boulangeries, un supermarché, un bureau de poste et une boucherie-charcuterie dans les environs.
Elle est à vendre pour la somme de 420 000 €.
Contactez Félix SOUMARMON (tél : 06-10-24-97-84) pour obtenir de plus amples renseignements sur la maison, sur les modalités de vente ou sur les démarches à suivre. Maisons France Confort Magny-le-Hongre est là pour vous accompagner à toutes les étapes de l'achat.
Annonce proposée par un Agent Commercial Partenaire.
Mentions légales
Terrain proposé par un partenaire foncier selon disponibilités et autorisation de publicité au prix de 250 000 €. Hors droit d'enregistrement et frais de notaire. Maison proposée, avec un contrat de construction de maison individuelle, dans le cadre de la loi du 19/12/1990, au prix de 170 000 € (Hors branchements et raccordements, papiers peints, peintures, revêtement de sol dans les chambres, qui sont chiffrés dans les travaux qui restent à charge du client. Tarif modifiable sans préavis). Étiquette énergie : A. Différents modèles disponibles pour ce terrain. Assurances et garanties du constructeur comprises (RC professionnelle, décennale, dommage ouvrage).Agence Maisons France Confort de Magny-le-Hongre (77700)
- Téléphone :
- 01 84 80 92 96
- Adressse :
- 11 rue de Courtalin
77700 Magny-le-Hongre, France
